Vuokrataan tuotantotilat, varastotilat, työtilat - Loviisa
Vårdöntie 55, 07910 Loviisa #10794684
Edullista varastotilaa Valkolammella meren äärellä! Kuukausivuokra: Alkaen 3,9 €/m²/kk, alv-vapaa tila
Osoite
Vårdöntie 55, 07910 Loviisa
Tilatyyppi
Tuotantotilaa
100 - 300 m2
Varastotilaa
100 - 300 m2
Työtilaa
100 - 300 m2
Yhteensä
100 - 300 m2
Vuokra
Alkaen 3,9 €/m²/kk, alv-vapaa tila
Muuta
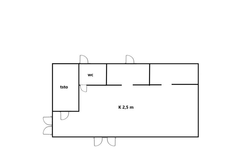
Valkon teollisuusalueella on tarjolla edullista varastotilaa entisen lähikaupan tiloissa. Tila sopii monenlaiseen varastointiin ja pienimuotoiseen työskentelyyn.
Pinta-alaltaan tila on noin 100–300 m² ja tilan varusteluun kuuluu vesipiste, yksi leveämpi ovi (L1,7 m x K2,0 m) ja useampia käyntiovia. Sisätilan vapaa korkeus on noin 2,5 metriä. Tilassa ovat vanhat kylmähuoneet paikoillaan, mutta koneiston toimivuutta ei ole testattu. Rakennuksessa on wc, joka on vuokralaisen käytössä. Tarvittaessa tiloissa on myös pieni toimistotila. Varastotilassa ei ole lattiakaivoa eikä tilaan mahdu ajamaan autolla sisään.
Lämmitys sisältyy vuokraan ja sähkö ja vesi veloitetaan erikseen (kulutuksen mukaan).
Rakennuksen takapihalla on niukasti paikoitustilaa, mutta rakennuksen eteen mahtuu muutama auto.
Rakennus sijaitsee Valkolammella meren äärellä Valkon venesataman lähellä.
Lämmitys sisältyy vuokraan!
Kohdetiedot
Sijainti
Katuosoite: Vårdöntie 55, 07910 Valko
Kaupunginosa: Valko
Ympäristö: Valkolammen aluetta ja Valkon venesatama
Rakennus/huoneisto
Pinta-ala: Noin 100-300 m²
Huoneistoselitelmä: Varastotila (entisen lähikaupan tiloissa)
Kunto, varusteet ja palvelut: wc, vesipiste, voimavirta, pieni toimisto
Vapautuu: Heti vapaa
Vuokrahinta ja kulut
Kuukausivuokra: Alkaen 3,9 €/m²/kk, alv-vapaa tila
Vesimaksu: Kulutuksen mukaan
Sähkömaksu: Mittauksen mukaan
Lämmitys: Sisältyy vuokraan
Jätehuolto: Vuokralainen tekee oman sopimuksen
Muut ehdot: Minimisopimuskausi 12 kk, vakuus 3 kk:n vuokraa vastaava summa, luottotietojen oltava kunnossa
Pinta-alaltaan tila on noin 100–300 m² ja tilan varusteluun kuuluu vesipiste, yksi leveämpi ovi (L1,7 m x K2,0 m) ja useampia käyntiovia. Sisätilan vapaa korkeus on noin 2,5 metriä. Tilassa ovat vanhat kylmähuoneet paikoillaan, mutta koneiston toimivuutta ei ole testattu. Rakennuksessa on wc, joka on vuokralaisen käytössä. Tarvittaessa tiloissa on myös pieni toimistotila. Varastotilassa ei ole lattiakaivoa eikä tilaan mahdu ajamaan autolla sisään.
Lämmitys sisältyy vuokraan ja sähkö ja vesi veloitetaan erikseen (kulutuksen mukaan).
Rakennuksen takapihalla on niukasti paikoitustilaa, mutta rakennuksen eteen mahtuu muutama auto.
Rakennus sijaitsee Valkolammella meren äärellä Valkon venesataman lähellä.
Lämmitys sisältyy vuokraan!
Kohdetiedot
Sijainti
Katuosoite: Vårdöntie 55, 07910 Valko
Kaupunginosa: Valko
Ympäristö: Valkolammen aluetta ja Valkon venesatama
Rakennus/huoneisto
Pinta-ala: Noin 100-300 m²
Huoneistoselitelmä: Varastotila (entisen lähikaupan tiloissa)
Kunto, varusteet ja palvelut: wc, vesipiste, voimavirta, pieni toimisto
Vapautuu: Heti vapaa
Vuokrahinta ja kulut
Kuukausivuokra: Alkaen 3,9 €/m²/kk, alv-vapaa tila
Vesimaksu: Kulutuksen mukaan
Sähkömaksu: Mittauksen mukaan
Lämmitys: Sisältyy vuokraan
Jätehuolto: Vuokralainen tekee oman sopimuksen
Muut ehdot: Minimisopimuskausi 12 kk, vakuus 3 kk:n vuokraa vastaava summa, luottotietojen oltava kunnossa
Vapautuu
Heti
Ota yhteyttä
Tilat.fi
KTM, LKV Antti Soivio
Näytä puhelinnumero
0400 446 553
OTM, LKV Riikka Tuominen
Näytä puhelinnumero
0400 551 790
KTM, LKV Maria-Sofia Puhakka
Näytä puhelinnumero
0400-150330
Yrityksen virallinen nimi: LKV Toimitilaa.fi Oy. Toimitilojen välitykseen erikoistunut yritys.
http://www.tilat.fiPyydä lisätietoa
