Vuokrataan - Järvenpää
Sibeliuksenkatu 18-22, Järvenpää, 04400 Järvenpää #10794634
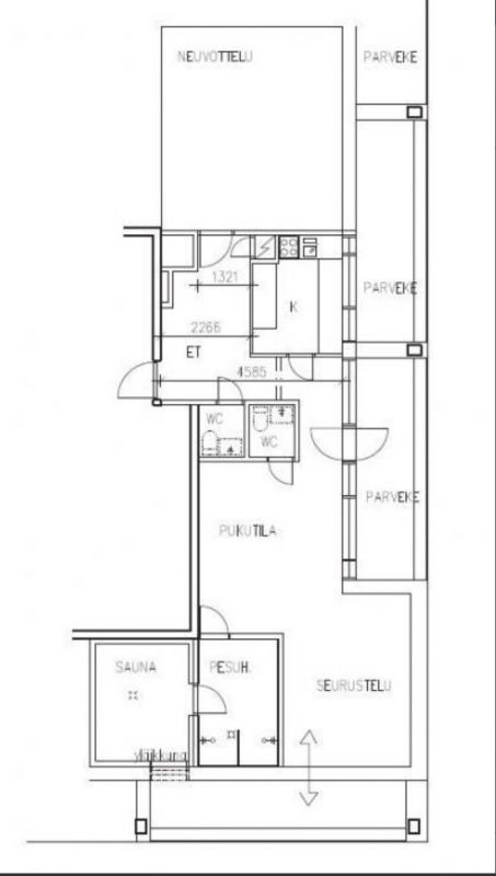
Vuokrataan seitsemännen kerroksen 91m2 toimistotila erittäin keskeiseltä paikalta Järvenpäässä, kävelykatu Jannen varrella sijaitsevasta kauppakeskuksen tornista. Tämä rakennuksen entinen saunatila on muuttunut toimistoksi. Viihtyisyyttä lisäävät tilavat parvekkeet sekä upea näkymä Tuusulan järvelle. Toimistotila ylimmässä kerroksessa keskeisellä paikalla Järvenpään keskustassa hyvässä liikekiinteistössä. Tilassa 1-2 huonetta ja avotilaa, keittiö sekä kaksi vessaa. Tilassa oleva sauna ei ole käytössä, vaan toimii esim. varastona.
Kiinteistö sijaitsee Järvenpään keskustan ytimessä kävelykatu Jannen varrella, torin ja Prisman läheisyydessä. Bussipysäkki löytyy talon vierestä, ja juna-asemalle on vain viiden minuutin kävelymatka. Järvenpää on aktiivinen ja vetovoimainen kulttuurin, liike-elämän sekä urheilun kohtauspaikka.
Liikekeskuksen yhteiskäyttöisiä tiloja on saneerattu näyttävästi ja tiloissa toimii useita vahvan brandin retail- ja kahvilatoimijoita kuten esimerkiksi Intersport, Iittala, Pentik ja Espresso House.
Kysy lisää Jouko Raitanen Helsinki puh. 0504695444
RHG Real Estate
Hämeenkatu 2 B20, 20500 Turku
Näytä puhelinnumero
020 734 4020
Jouko Raitanen
Näytä puhelinnumero
050 469 5444
