Vuokrataan toimistotilat, varastotilat - Helsinki
Mekaanikonkatu 21, Herttoniemi, 00880 Helsinki #10794528
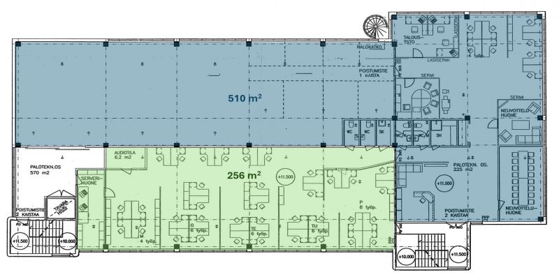
Vuokrattavana Mekaanikonkadulla hyvällä sijainnilla olevaa asiallista ja siistiä toimisto-/varastotilaa.
Osoite
Mekaanikonkatu 21, 00880 Helsinki
Tilatyyppi
Toimistotilaa
230 m2
Varastotilaa
280 m2
Yhteensä
510 m2
Tilajako
Jaettavissa
Yhdistettävissä
Kiinteistö
Vuokrattavana Mekaanikonkadulla hyvällä sijainnilla olevaa asiallista ja siistiä toimisto-/varastotilaa. Tilat voidaan muokata käyttäjälle sopivaksi.
Sijainti
Herttoniemi, Helsinki
Pysäköinti
Kiinteistön pihalla.
Palvelut
Lähialueen palvelut.
Kulkuyhteydet
-Metro
-Bussi
-Oma auto
-Bussi
-Oma auto
Vapautuu
31.05.2026
Kerros
3
Energiatehokkuusluokka
Ei lain edellyttämää energiatodistusta
Näkyvällä paikalla
Jaettavissa
Hissi
Lastauslaituri
Ota yhteyttä
REALIUM OY LKV
Tammasaarenkatu 1, 00180 Helsinki
Vaihde:
Näytä puhelinnumero
010 326 346
Tuomo Mäkelä
tuomo.makela@realium.fi
p.
Näytä puhelinnumero
044 050 1158
Joel Keto
joel.keto@realium.fi
p.
Näytä puhelinnumero
045 317 0330
KAIKKI TILAVAIHTOEHDOT KERRALLA!
SOITA - MEILAA JA TILAA NÄYTTÖ!
Ilmainen palvelu tilanhakijoille.
Kartoitamme parhaat tilavaihtoehdot.
Kaikki kohteet eivät ole netissä.
Pyydä lisätietoa
