Vuokrataan varastotilat - Helsinki
Hankasuontie 3, Konala, 00390 Helsinki #10794436
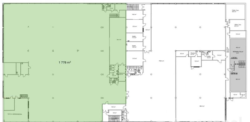
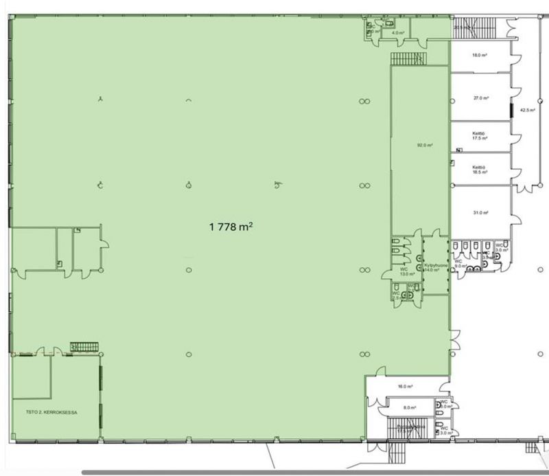
Vuokrattavana katutason varastotilaa.
Osoite
Hankasuontie 3, 00390 Helsinki
Tilatyyppi
Varastotilaa
1778 m2
Kiinteistö
Vuokrattavana katutason varastotilaa. Tilan korkeus on noin 5 m. Tilassa on lastauslaituriyhteys ja 2 maantason nosto-ovea. Varastoon sisältyy 75m2 kokoinen parvirakennelma, jossa on toimistoa ja sosiaalitilat.
Sijainti
Konala, Helsinki
Pysäköinti
Kiinteistön pihalla on pysäköintitilaa.
Palvelut
Lähialueen palvelut.
Kulkuyhteydet
-Bussi
-Oma auto
-Oma auto
Vapautuu
Heti
Kerros
1
Energiatehokkuusluokka
Ei lain edellyttämää energiatodistusta
Katutasossa
Näkyvällä paikalla
Lastauslaituri
Ota yhteyttä
REALIUM OY LKV
Tammasaarenkatu 1, 00180 Helsinki
Vaihde:
Näytä puhelinnumero
010 326 346
Tuomo Mäkelä
tuomo.makela@realium.fi
p.
Näytä puhelinnumero
044 050 1158
Joel Keto
joel.keto@realium.fi
p.
Näytä puhelinnumero
045 317 0330
KAIKKI TILAVAIHTOEHDOT KERRALLA!
SOITA - MEILAA JA TILAA NÄYTTÖ!
Ilmainen palvelu tilanhakijoille.
Kartoitamme parhaat tilavaihtoehdot.
Kaikki kohteet eivät ole netissä.
Pyydä lisätietoa
