Vuokrataan toimistotilat - Espoo
Niittytaival 13, Niittykumpu, 02200 Espoo #10794388
Vuokrattavana toimistotilaa Espoon Niittykummussa.
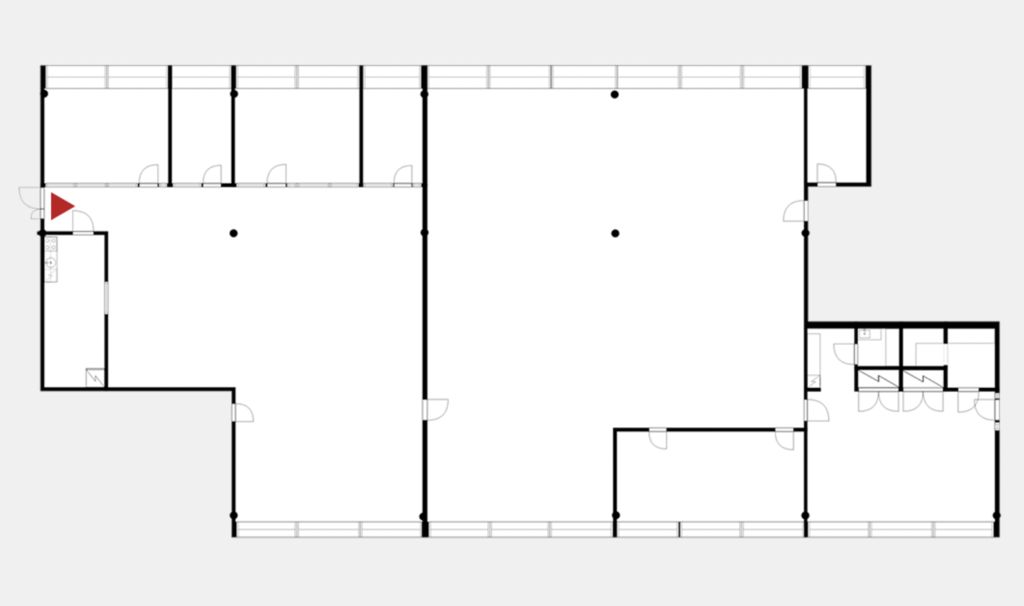
Tämä 628m2 toimisto sijaitsee kiinteistön 3. kerroksessa. Toimistossa on avotilaa, huoneita sekä oma keittiö.
Niittytaival 13 on toimistokiinteistö Länsiväylän varrella. Kiinteistössä on aulapalvelu ja runsaasti pysäköintitilaa. Kiinteistön toimitilat ovat helposti muokattavissa uuden vuokralaisen tarpeiden mukaan. Kiinteistöstä on n. kilometrin matka Niittykummun metroasemalle.
Kysy lisää numerosta 044 723 4700 tai info@bref.fi. Palvelumme on tilanhakijoille ilmainen.
Hissi
Bureau Real Estate Finland Oy
Lars Sonckin kaari 16, 02600 Espoo
Näytä puhelinnumero
0447234700
Bureau Real Estate Finland Oy
https://www.bref.fi