Vuokrataan toimistotilat - Espoo
Tarvonsalmenkatu 17, Perkkaa, 02600 Espoo #10794251
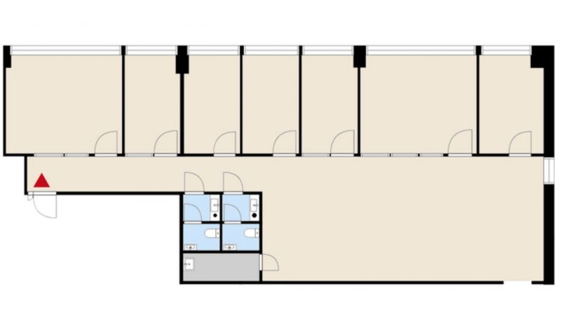
Loistavalla pohjalla oleva, usean huoneen 174 m2:n toimisto Espoon Perkkaalta.
Osoite
Tarvonsalmenkatu 17, 02600 Espoo
Tilatyyppi
Toimistotilaa
174 m2
Kiinteistö
Turunväylän vieressä ja kehittyvän Vermonniityn kupeessa sijaitsevasta Derby Business Park:sta on vuokrattavana erittäin hyväpohjainen kokonaisuus pientä toimistosta etsivälle. 174 m2:n toimisto sijaitsee kohteen Spurtti-talon toisessa kerroksessa. Toimistossa on seitsemän huonetta/neuvottelutilaa, joten täällä on mahdollista saada omaa työskentelyrauhaa esimerkiksi etäpalavereihin.
Ympäristö
Täällä voit nauttia metsän ja meren läheisyydestä.
Pysäköinti
Oma pysäköintihalli, johon on saatavilla runsaasti pysäköintioikeuksia ja omaa useita sähköautonlatauspisteitä. Kohteen oven edessä on asiakaspysäköinti.
Palvelut
Kohteella on oma lounasravintola, kahvila ja vuokrattavia neuvottelutiloja. Lisäksi kohteelta löytyy kuntosali ja sauna. Myös autopesu on saatavilla.
Kulkuyhteydet
Kiinteistön edessä on Alepa-kaupunkipyöräasema ja omat pyörät saa talteen parkkitaloon. Pyöräiluysesongin alkaessa kiinteistö tarjoaa ilmaisen fillarihuollon asiakkaille. Juna-asemalle on matkaa 1,5km, Raide-jokerille 900m ja bussille 250m.
Autolla ajaessa Turunväylältä matka kestää kahdesta neljään minuuttia tulosuunnasta riippuen.
Autolla ajaessa Turunväylältä matka kestää kahdesta neljään minuuttia tulosuunnasta riippuen.
Muuta
LEED Platinum-sertifikaatti.
Ainutlaatuinen, ilmainen kyytipalvelu Sellon GLO Hotellin ja Derbyn välillä Derbyn asiakkaille ja heidän vierailleen. Maksuton Ventoniemen minibussi kulkee helpottaen työmatkalaisten arkea.
Ainutlaatuinen, ilmainen kyytipalvelu Sellon GLO Hotellin ja Derbyn välillä Derbyn asiakkaille ja heidän vierailleen. Maksuton Ventoniemen minibussi kulkee helpottaen työmatkalaisten arkea.
Vapautuu
Heti
Kerros
2
Ota yhteyttä
MAP Tilat Oy
Maarit Helander
maarit.helander@maptilat.fi
Näytä puhelinnumero
044 593 8661
Energiakuja 3, 00180 Helsinki
Mika Hermaala
mika.hermaala@maptilat.fi
Näytä puhelinnumero
040 192 1313
Pyydä lisätietoa
