Vuokrataan toimistotilat - Helsinki
Valimotie 15, Pitäjänmäki, 00380 Helsinki #10794152
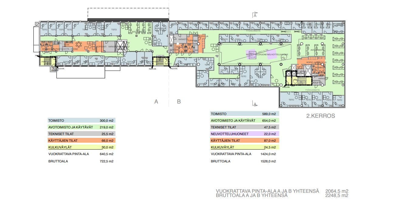
Tehokkaita ja nykyaikaisia tilaratkaisuja Pitäjänmäessä. Vuokrattavissa toisen kerroksen toimistotila 624 m2. Ohessa koko 2. kerroksen pohjakuva.
Kahdesta rakennuksesta koostuva Valimotie 15 sijaitsee Pitäjänmäen yrityskeskittymässä hyvien palvelujen läheisyydessä. Henkilöstön käytössä on myös viereisen kiinteistön Valimotie 17-19 palvelut: henkilöstöravintola, aulapalvelu, kokoustilat, auditorio sekä kuntosali uima-altaineen ja edustustilat.
Lisätietoja numerosta 020 7290 710. Lisää kohteita osoitteessa premises.fi.
Kohteella ei ole lain edellyttämää energiatodistusta tai energialuokka ei tiedossa.Kerros: 2
CRE PREMISES
Puh. Näytä puhelinnumero 020 7290 710
Vantaankoskentie 14
01670 VANTAA
