Vuokrataan toimistotilat, liiketilat, näyttelytilat - Helsinki
Pursimiehenkatu 29-31, Punavuori, 00150 Helsinki #10794124
Pursimiehenkatu 31 tarjoaa ainutlaatuisen mahdollisuuden sijoittaa yrityksesi liiketilan, toimiston tai showroomin Punavuoreen, jossa historia kohtaa modernin elämäntavan.
Osoite
Pursimiehenkatu 29-31, 00150 Helsinki
Tilatyyppi
Toimistotilaa
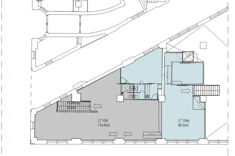
114 m2
Liiketilaa
114 m2
Näyttelytilaa
114 m2
Yhteensä
114 m2
Tila soveltuu
Studio/ateljé, parturi- ja kampaamo, coworking
Kiinteistö
Tämä 114 neliömetrin tila sijaitsee ensimmäisessä kerroksessa, tarjoten helpon pääsyn omalla sisäänkäynnillä ja näkyvyyden alueen vilkkaalla kadulla. Tilat toteutetaan yhteistyössä uuden vuokralaisen kanssa. Raitiovaunut ja linja-autot tuovat asiakkaat suoraan ovellesi, ja kadunvarsipysäköinti mahdollistaa vaivattoman saapumisen myös omalla autolla.
Punavuori on tunnettu monipuolisista palveluistaan. Tässä kiinteistössä yhdistyvät työ ja vapaa-aika saumattomasti: vuokrattavat neuvottelutilat, pientoimistot ja co-workingalueet tarjoavat joustavia työskentelymahdollisuuksia, kun taas alakerran päivittäistavarakauppa, kahvilat ja erikoisravintolat tuovat arkeen mukavuutta ja elämyksiä. Eikä sovi unohtaa Riviera-elokuvateatteria ja Drinkkibaaria.
Tämä tila on täydellinen yrittäjälle, joka arvostaa sijainnin merkitystä ja haluaa olla siellä, missä tapahtuu. Punavuori tarjoaa loistavan ympäristön niin luoville aloille kuin perinteisemmillekin yrityksille. Älä jätä tätä tilaisuutta käyttämättä – ota askel kohti unelmiesi yrityssijaintia Punavuoressa.
Punavuori on tunnettu monipuolisista palveluistaan. Tässä kiinteistössä yhdistyvät työ ja vapaa-aika saumattomasti: vuokrattavat neuvottelutilat, pientoimistot ja co-workingalueet tarjoavat joustavia työskentelymahdollisuuksia, kun taas alakerran päivittäistavarakauppa, kahvilat ja erikoisravintolat tuovat arkeen mukavuutta ja elämyksiä. Eikä sovi unohtaa Riviera-elokuvateatteria ja Drinkkibaaria.
Tämä tila on täydellinen yrittäjälle, joka arvostaa sijainnin merkitystä ja haluaa olla siellä, missä tapahtuu. Punavuori tarjoaa loistavan ympäristön niin luoville aloille kuin perinteisemmillekin yrityksille. Älä jätä tätä tilaisuutta käyttämättä – ota askel kohti unelmiesi yrityssijaintia Punavuoressa.
Palvelut
Kohteesta löytyy vuokrattavia neuvottelutiloja, pientoimistoja ja co-workingalue. Lisäksi kiinteistössä toimii päivittäistavarakauppa, kahviloita ja konditoria, korkeatasoinen Pizza ravintola Forza sekä Riviera elokuvateatteri sekä Drinkkibaari.
Vapautuu
Heti
Kerros
1 / 6
Näkyvällä paikalla
Ota yhteyttä
MAP Tilat Oy
Mika Hermaala
mika.hermaala@maptilat.fi
Näytä puhelinnumero
040 192 1313
Energiakuja 3, 00180 Helsinki
Maarit Helander
maarit.helander@maptilat.fi
Näytä puhelinnumero
044 593 8661
Pyydä lisätietoa
