Vuokrataan toimistotilat - Vantaa
Niittytie 13, Koivuhaka, 01300 Vantaa #10794008
Vuokrattavana valoisaa toimistotilaa loistavalla sijainnilla.
Osoite
Niittytie 13, 01300 Vantaa
Tilatyyppi
Toimistotilaa
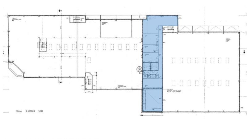
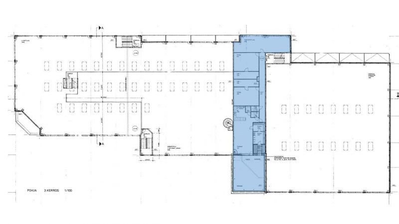
486 m2
Kiinteistö
Vuokrattavana valoisaa toimistotilaa loistavalla sijainnilla. Tila remontoidaan asiakkaan tarpeiden mukaan. Toimitilassa on oma takkahuone, keittiö, pukuhuonetilat sekä saunatila, josta käynti upealle parvekkeelle.
Sijainti
Koivuhaka, Helsinki
Pysäköinti
Saatavilla hyvin parkkipaikkoja kiinteistön edustalta.
Palvelut
Alueen palvelut.
Kulkuyhteydet
-Bussi
-Oma auto
-Oma auto
Vapautuu
Heti
Kerros
2.-3.
Energiatehokkuusluokka
Ei lain edellyttämää energiatodistusta
Katutasossa
Näkyvällä paikalla
Ota yhteyttä
REALIUM OY LKV
Tammasaarenkatu 1, 00180 Helsinki
Vaihde:
Näytä puhelinnumero
010 326 346
Tuomo Mäkelä
tuomo.makela@realium.fi
p.
Näytä puhelinnumero
044 050 1158
Joel Keto
joel.keto@realium.fi
p.
Näytä puhelinnumero
045 317 0330
KAIKKI TILAVAIHTOEHDOT KERRALLA!
SOITA - MEILAA JA TILAA NÄYTTÖ!
Ilmainen palvelu tilanhakijoille.
Kartoitamme parhaat tilavaihtoehdot.
Kaikki kohteet eivät ole netissä.
Pyydä lisätietoa
