Vuokrataan toimistotilat - Helsinki
Fokus, Paciuksenkatu 21, Pikku Huopalahti, 00270 Helsinki #10793915
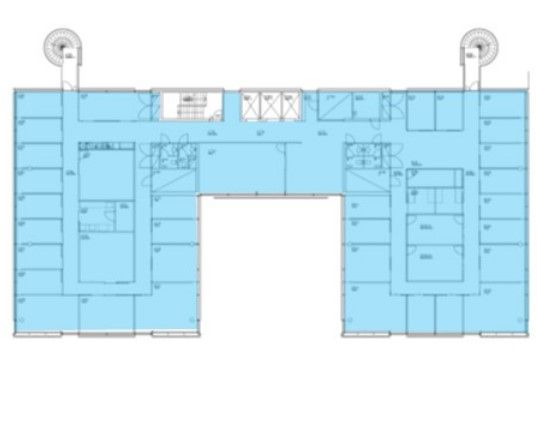
7. kerroksen toimistotila, joka on muokattavissa käyttäjän tarpeiden mukaisesti
Osoite
Paciuksenkatu 21, 00270 Helsinki
Tilatyyppi
Toimistotilaa
850 m2
Muuta
Fokus on vuonna 2002 rakennettu moderni toimistokiinteistö näkyvällä paikalla erinomaisten liikenneyhteyksien varrella ja kattavien palveluiden tuntumassa. Kahdeksankerroksinen Helsingin Meilahdessa sijaitseva toimistokiinteistö tarjoaa mm. aulapalvelut, henkilöstöravintolan ja edustussaunatilat, kiinteistössä on jäähdyttävä ilmanvaihto ja sprinklerointi.
Kiinteistön vuokrattavat autopaikat sijaitsevat autohallissa ja pihalla.
Julkisen liikenteen yhteydet Fokukseen ovat monipuoliset: Munkkiniemen, Otaniemen ja Huopalahdentien bussi- ja raitiovaunulinjat ovat lähietäisyydellä.
Kiinteistön vuokrattavat autopaikat sijaitsevat autohallissa ja pihalla.
Julkisen liikenteen yhteydet Fokukseen ovat monipuoliset: Munkkiniemen, Otaniemen ja Huopalahdentien bussi- ja raitiovaunulinjat ovat lähietäisyydellä.
Vapautuu
Kysy
Rakennusvuosi
2002
Kerros
7
Ota yhteyttä
Juhola Asset Management Oy
Itsehallintokuja 4 02600 Espoo
Näytä puhelinnumero
040 4551 390
Leena Juhola
Pyydä lisätietoa
