Vuokrataan toimistotilat - Helsinki
Urho Kekkosen katu 3-7, Kamppi, 00100 Helsinki #10793828
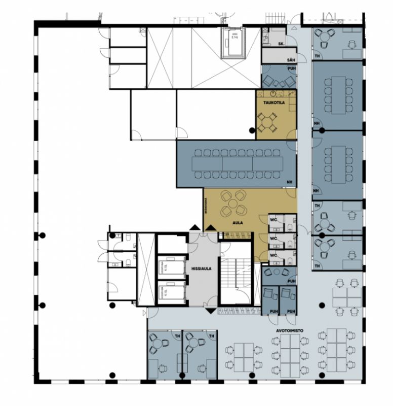
Vuokrattavana edustavaa, modernia, näyttävää toimistotilaa Kampin ytimessä.
Osoite
Urho Kekkosen katu 3-7, 00100 Helsinki
Tilatyyppi
Toimistotilaa
383 m2
Tilajako
Jaettavissa
laajennettavissa 735 m²
Kiinteistö
Vuokrattavana edustavaa, modernia, näyttävää toimistotilaa Kampin ytimessä. Tilassa erikokoisia neuvotteluhuoneita, toimistohuoneita sekä avotoimistoa.
Sijainti
Kamppi, Helsinki
Pysäköinti
Alueen kaupalliset pysäköintihallit.
Palvelut
Ydinkeskustan palvelut
Kulkuyhteydet
-Metro
-Bussi
-Raitiovaunu
-Juna
-Oma auto
-Bussi
-Raitiovaunu
-Juna
-Oma auto
Vapautuu
Heti
Kerros
5
Energiatehokkuusluokka
Ei lain edellyttämää energiatodistusta
Näkyvällä paikalla
Jaettavissa
Hissi
Ota yhteyttä
REALIUM OY LKV
Tammasaarenkatu 1, 00180 Helsinki
Vaihde:
Näytä puhelinnumero
010 326 346
Tuomo Mäkelä
tuomo.makela@realium.fi
p.
Näytä puhelinnumero
044 050 1158
Joel Keto
joel.keto@realium.fi
p.
Näytä puhelinnumero
045 317 0330
KAIKKI TILAVAIHTOEHDOT KERRALLA!
SOITA - MEILAA JA TILAA NÄYTTÖ!
Ilmainen palvelu tilanhakijoille.
Kartoitamme parhaat tilavaihtoehdot.
Kaikki kohteet eivät ole netissä.
Pyydä lisätietoa
