Vuokrataan toimistotilat - Helsinki
Ratakatu 1, Kaartinkaupunki, 00100 Helsinki #10793794
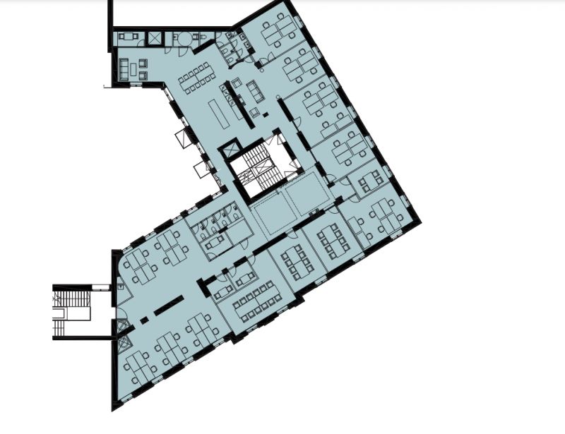
Täysin remontoitu toimistokohde valmistuu Kaartinkaupunkiin 2025 vuoden alussa. Kiinteistön toimitilat huokuvat historiallista arvokkuutta ja tarjoavat tämän päivän vaatimukset täyttävän toimistotilan vaativaankin makuun. Kohteesta on vuokrattavissa nyt 574 m2 kokoinen koko kerroksen kattava toimistotila, joka voidaan räätälöidä asiakkaan toiveiden mukaan. Tilaan voidaan toteuttaa esimerkiksi avotilan ja huonetoimistojen yhdistelmää. Ja lisäksi käytössä on oma viihtyisä keittiö ja loungealue sekä parveke.
Kohteen vuokralaisilla on käytettävissään oman viihtyisän toimitilan lisäksi tyylikäs sisäpiha, joka mahdollistaa viihtyisän oleskelun sisäpihan suojassa. Lähialueelta löytyy myös kattavasti kaikki keskustan alueen palvelut, sekä lounaspaikat.
Hissi
MAP Tilat Oy
Mika Hermaala
mika.hermaala@maptilat.fi
Näytä puhelinnumero
040 192 1313
Energiakuja 3, 00180 Helsinki
Maarit Helander
maarit.helander@maptilat.fi
Näytä puhelinnumero
044 593 8661
