Vuokrataan toimistotilat - Helsinki
Ratakatu 1, Kaartinkaupunki, 00100 Helsinki #10793793
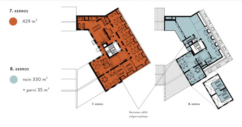
Uniikkia toimitilaa! Täysin remontoitu toimistokohde valmistuu Kaartinkaupunkiin 2025 vuoden alussa. Kiinteistön toimitilat huokuvat historiallista arvokkuutta ja tarjoavat tämän päivän vaatimukset täyttävän toimistotilan vaativaankin makuun. Kohteesta on tarjolla uniikki ullakkotoimisto joka tarjoaa 2 kerrokseen toteutetun upealla huonekorkeudella varustetun kokonaisuuden. Tilat voidaan räätälöidä asiakkaan tarpeiden ja toiveiden mukaan ja pohjaratkaisu mahdollistaa huonetoimistojen, avotilan yms. yhdistämisen joustavasti. Käytettävissä on myös upea yksityinen kattoterassi, josta avautuu upeat maisemat kantakaupungin kattojen ylle.
Kohteen vuokralaisilla on käytettävissään oman viihtyisän toimitilan lisäksi tyylikäs sisäpiha, joka mahdollistaa viihtyisän oleskelun sisäpihan suojassa. Lähialueelta löytyy myös kattavasti kaikki keskustan alueen palvelut, sekä lounaspaikat.
MAP Tilat Oy
Mika Hermaala
mika.hermaala@maptilat.fi
Näytä puhelinnumero
040 192 1313
Energiakuja 3, 00180 Helsinki
Maarit Helander
maarit.helander@maptilat.fi
Näytä puhelinnumero
044 593 8661
