Vuokrataan toimistotilat, tuotantotilat, varastotilat - Helsinki
Laippatie 1, 00880 Helsinki #10793710
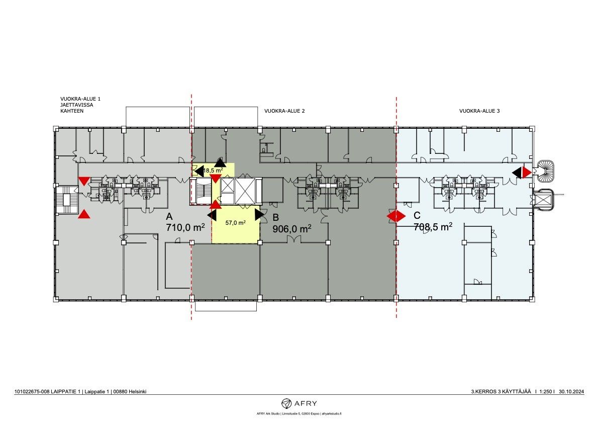
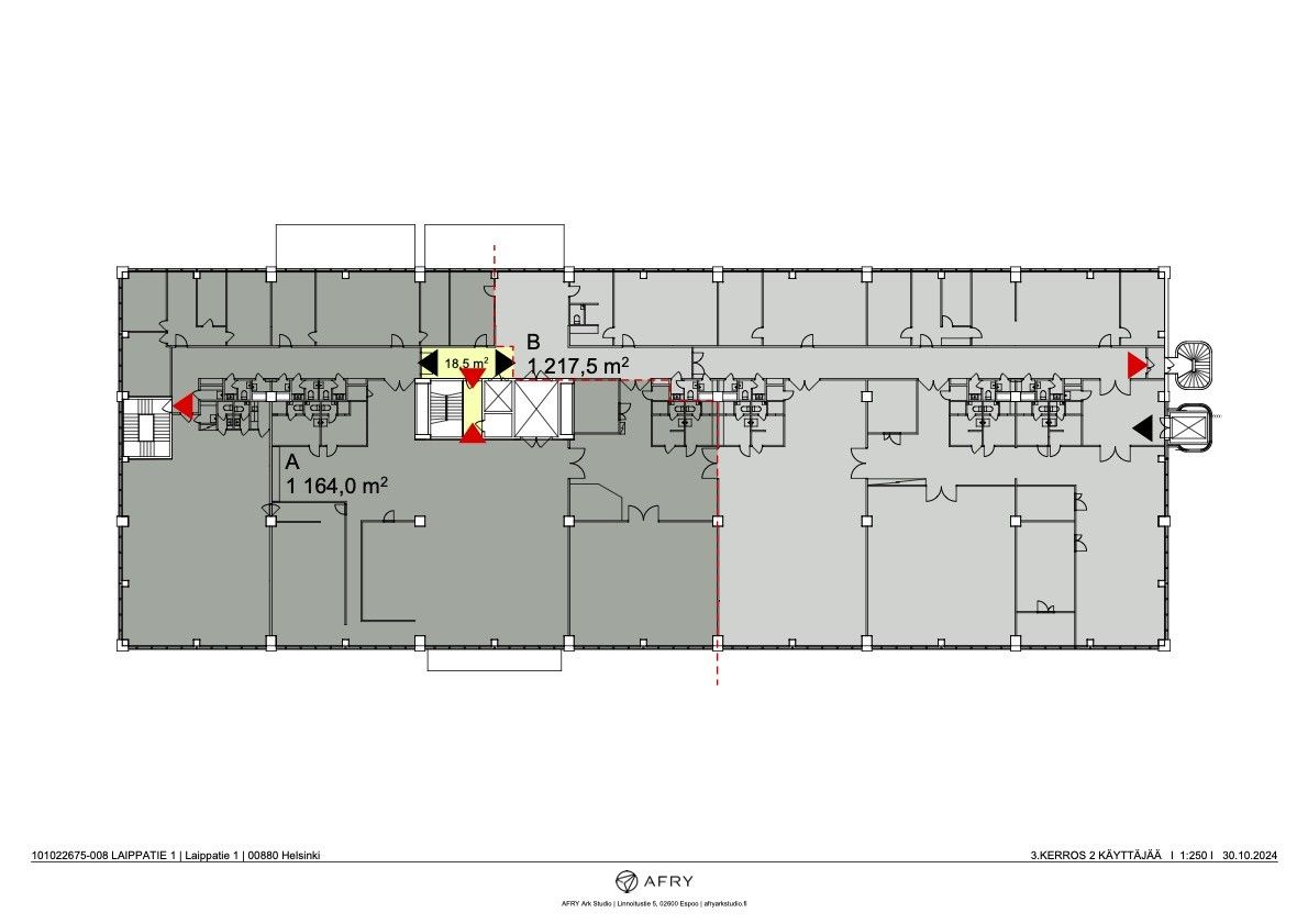
Roihupellossa vapautunut monipuolista toimisto-, pientuotanto ja varastotilaa. Tilat ovat jaettavissa monella eri tavalla ja tavarahissi vie kaikkiin tilakokonaisuuksiin.
Liikenteellisesti hyvällä sijainnilla Itäväylän vieressä, lyhyt matka Itäkeskukseen. Siilitien metroasema kävelymatkan päässä.
Kadulla ja pihalla parkkitilaa.
Kysy lisää mika.tilli@rhg.fi, 040 7013005
Osoite
Laippatie 1, 00880 Helsinki
Tilatyyppi
Toimistotilaa
700 - 2400 m2
Tuotantotilaa
700 - 2400 m2
Varastotilaa
700 - 2400 m2
Yhteensä
700 - 2400 m2
Vapautuu
Kysy
Huoneiden lukumäärä
1
Energiatehokkuusluokka
Ei lain edellyttämää energiatodistusta
Ota yhteyttä
RHG Real Estate
Hämeenkatu 2 B20, 20500 Turku
Mika Tilli
Välittäjä, LKV
Näytä puhelinnumero
0407013005
Pyydä lisätietoa
