Vuokrataan toimistotilat - Helsinki

Ruoholahdenkatu 14, Kamppi, 00180 Helsinki #10793656

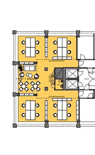
Ruoholahdenkatu 14 sijaitsee keskustan tuntumassa hyvien yhteyksien varrella. Kiinteistöä on uudistettu aulan ja tilojen osalta ajan saatossa ja se tarjoaakin viihtyisät toimitilat hyvien yhteyksien varrelta. Kiinteistöstä on tarjolla toisen kerroksen toimistotila 134m2, joka tarjoaa viihtyisät tilat monenlaiseen tarkoitukseen. Tila on toteutettu tällä hetkellä pääosin huonetoimistoina jotka sopivat tiimityöskentelyyn.

Osoite
Ruoholahdenkatu 14, 00180 Helsinki
Tilatyyppi
Toimistotilaa
134 m2
Pohjapiirros
Kiinteistö
Ruoholahdenkatu 14 sijaitsee keskustan tuntumassa hyvien yhteyksien varrella. Kiinteistöä on uudistettu aulan ja tilojen osalta ajan saatossa ja se tarjoaakin viihtyisät toimitilat hyvien yhteyksien varrelta. Kiinteistöstä on tarjolla toisen kerroksen toimistotila 134m2, joka tarjoaa viihtyisät tilat monenlaiseen tarkoitukseen. Tila on toteutettu tällä hetkellä pääosin huonetoimistoina jotka sopivat tiimityöskentelyyn Tilasta löytyy myös omat wc-tilat sekä viihtyisä keittiökulmaus. Kohteen tilat voidaan remontoida vuokralaisen toiveiden mukaisesti ja esimerkiksi ikkunapinnat voidaan jättää joko puun väriseksi tai maalata valkoiseksi.
Pysäköinti
Kohteesta vuokrattavana parkkipaikkoja vuokralaisten käyttöön muutamia kappaleita. Kiinteistön lähistöllä myös kadunvarsipysäköintiä ja pysäköintihalli.

Palvelut
Kohteena lähialueella on käytettävissä laajasti keskustan keskustan alueen kivijalkapalvelut lounasravintoloineen. Lähistöllä toimii myös päivittäistavara-ja erikoistavarakauppoja.
Kulkuyhteydet
Kohteeseen on helppo saapua julkisilla liikennevälineillä. Raitiovaunut ja bussit kulkevat kiinteistön edustalta. Myös Kampin metroasemalle on vain 700 metrin kävelymatka. Rautatieasemalle on 1.2 kilometrin matka kohteelta. Omalla autolla saapuville kohde sijaitsee lyhyen matkan päässä länsiväylältä, mutta kuitenkin helposti saavutettavissa myös keskustan suunnasta. Polkupyöräilijöille on hyödynnettävänä alueen pyörätiet ja kohteen oma pyöräparkki.
Vapautuu
Heti
Kerros
2 / 6
Ota yhteyttä

MAP Tilat Oy

Mika Hermaala
mika.hermaala@maptilat.fi
Näytä puhelinnumero 040 192 1313
Energiakuja 3, 00180 Helsinki

Maarit Helander
maarit.helander@maptilat.fi
Näytä puhelinnumero 044 593 8661

  http://www.maptilat.fi
Pyydä lisätietoa

Kohteesta Ruoholahdenkatu 14, Helsinki

 

B2B palvelut

MARKKINOINTI

Tavoita oikea kohderyhmä!

LASTAUSRATKAISUT

Mainos
Lastauksien ratkaisut tehokkaammin ja turvallisemmin