Vuokrataan toimistotilat - Helsinki
Ruoholahdenkatu 14, Kamppi, 00180 Helsinki #10793652
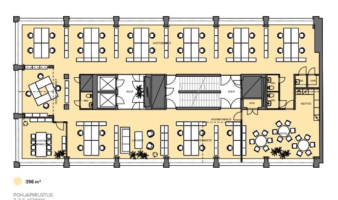
Ruoholahdenkatu 14 sijaitsee keskustan tuntumassa hyvien yhteyksien varrella. Kiinteistöä on uudistettu aulan ja tilojen osalta ajan saatossa ja se tarjoaakin viihtyisät toimitilat hyvien yhteyksien varrelta. Kiinteistöstä on tarjolla kuudennen kerroksen läpitalon toimistotila 396m2, joka tarjoaa viihtyisät tilat monenlaiseen tarkoitukseen.
Osoite
Ruoholahdenkatu 14, 00180 Helsinki
Tilatyyppi
Toimistotilaa
410 m2
Kiinteistö
Ruoholahdenkatu 14 sijaitsee keskustan tuntumassa hyvien yhteyksien varrella. Kiinteistöä on uudistettu aulan ja tilojen osalta ajan saatossa ja se tarjoaakin viihtyisät toimitilat hyvien yhteyksien varrelta. Kiinteistöstä on tarjolla viidennen kerroksen läpitalon toimistotila 410m2, joka tarjoaa viihtyisät tilat monenlaiseen tarkoitukseen. Tila on toteutettu tällä hetkellä pääosin avotoimistona ja muutamien huonetoimistojen yhdistelmällä. Tilaa on mahdollista jakaa esimerkiksi tilanjakajilla ja verhoilla useampaan kokonaisuuteen. Tilasta löytyy myös omat wc-tilat sekä viihtyisä keittiökulmaus. Tilasta avautuu näkymät useaan ilmansuuntaan ja mm. Lastenlehdon puistoon. Kohteen tilat voidaan remontoida vuokralaisen toiveiden mukaisesti ja esimerkiksi ikkunapinnat voidaan jättää joko puun väriseksi tai maalata valkoiseksi.
Pysäköinti
Kohteesta vuokrattavana parkkipaikkoja vuokralaisten käyttöön muutamia kappaleita. Kiinteistön lähistöllä myös kadunvarsipysäköintiä ja pysäköintihalli.
Palvelut
Kohteena lähialueella on käytettävissä laajasti keskustan keskustan alueen kivijalkapalvelut lounasravintoloineen. Lähistöllä toimii myös päivittäistavara-ja erikoistavarakauppoja.
Kulkuyhteydet
liikenneyhteyksistä:
Kohteeseen on helppo saapua julkisilla liikennevälineillä. Raitiovaunut ja bussit kulkevat kiinteistön edustalta. Myös Kampin metroasemalle on vain 700 metrin kävelymatka. Rautatieasemalle on 1.2 kilometrin matka kohteelta. Omalla autolla saapuville kohde sijaitsee lyhyen matkan päässä länsiväylältä, mutta kuitenkin helposti saavutettavissa myös keskustan suunnasta. Polkupyöräilijöille on hyödynnettävänä alueen pyörätiet ja kohteen oma pyöräparkki.
Kohteeseen on helppo saapua julkisilla liikennevälineillä. Raitiovaunut ja bussit kulkevat kiinteistön edustalta. Myös Kampin metroasemalle on vain 700 metrin kävelymatka. Rautatieasemalle on 1.2 kilometrin matka kohteelta. Omalla autolla saapuville kohde sijaitsee lyhyen matkan päässä länsiväylältä, mutta kuitenkin helposti saavutettavissa myös keskustan suunnasta. Polkupyöräilijöille on hyödynnettävänä alueen pyörätiet ja kohteen oma pyöräparkki.
Vapautuu
Heti
Kerros
5 / 6
Ota yhteyttä
MAP Tilat Oy
Mika Hermaala
mika.hermaala@maptilat.fi
Näytä puhelinnumero
040 192 1313
Energiakuja 3, 00180 Helsinki
Maarit Helander
maarit.helander@maptilat.fi
Näytä puhelinnumero
044 593 8661
Pyydä lisätietoa
