Vuokrataan toimistotilat - Jyväskylä
Gummeruksenkatu 7 hsto 79, Keskusta, 40100 Jyväskylä #10793617
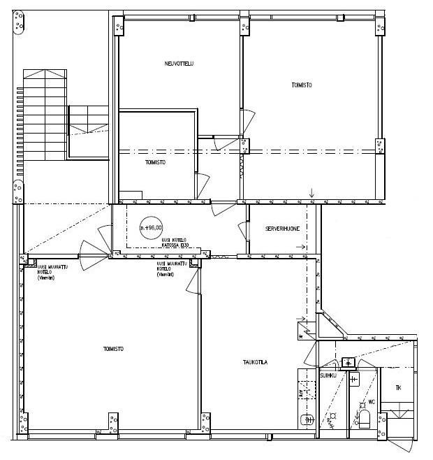
Kirkkopuiston laidalla siistikuntoinen toimistotila. Tilavat huoneet, erillinen suihkutila ja wc. Läpitalon. Sijainti katutasosta puolikerrosta alas. Oma käynti, jossa lukollinen portti. Helppo löytää paikalle: täsmälleen kirkon pääsisäänkäyntiä vastapäätä. Heti vapaa! Sovi esittely
Osoite
Gummeruksenkatu 7 hsto 79, 40100 Jyväskylä
Tilatyyppi
Toimistotilaa
124 m2
Vuokra
1450.00
Vapautuu
1.10.2024 mennessä
Ota yhteyttä
OP Koti Keski-Suomi Oy LKV
Kauppakatu
Kauppakatu 22
40100 JYVÄSKYLÄ
ma - pe 10.00-17.00
Janne Kotamäki
Myyntipäällikkö, LKV, YKV / Toimitilat
Näytä puhelinnumero
050 550 8945
Pyydä lisätietoa
