Vuokrataan liiketilat - Joensuu
Kauppakatu 30, 80100 Joensuu #10793585
Kauppakeskus Metropol sijaitsee Joensuun kaupallisen keskustan sydämessä, kauppatorin ja juna- sekä linja-autoaseman läheisyydessä.
Toisesta kerroksesta on kävelysilta viereiseen kauppakeskus Iso Myyhyn. Lisäksi kauppakeskus Metropolin yhteydessä on 3-kerroksinen pysäköintitalo, jossa on jopa 400 asiakaspaikkaa.
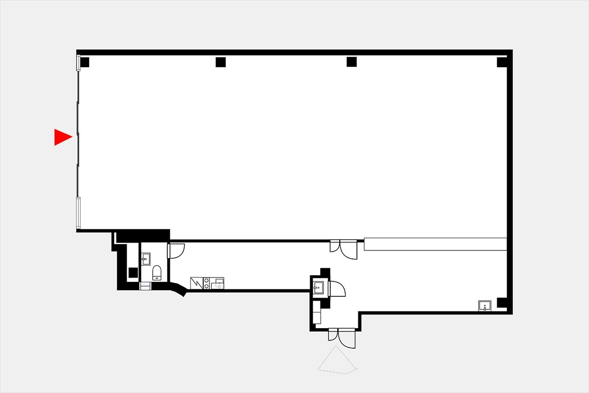
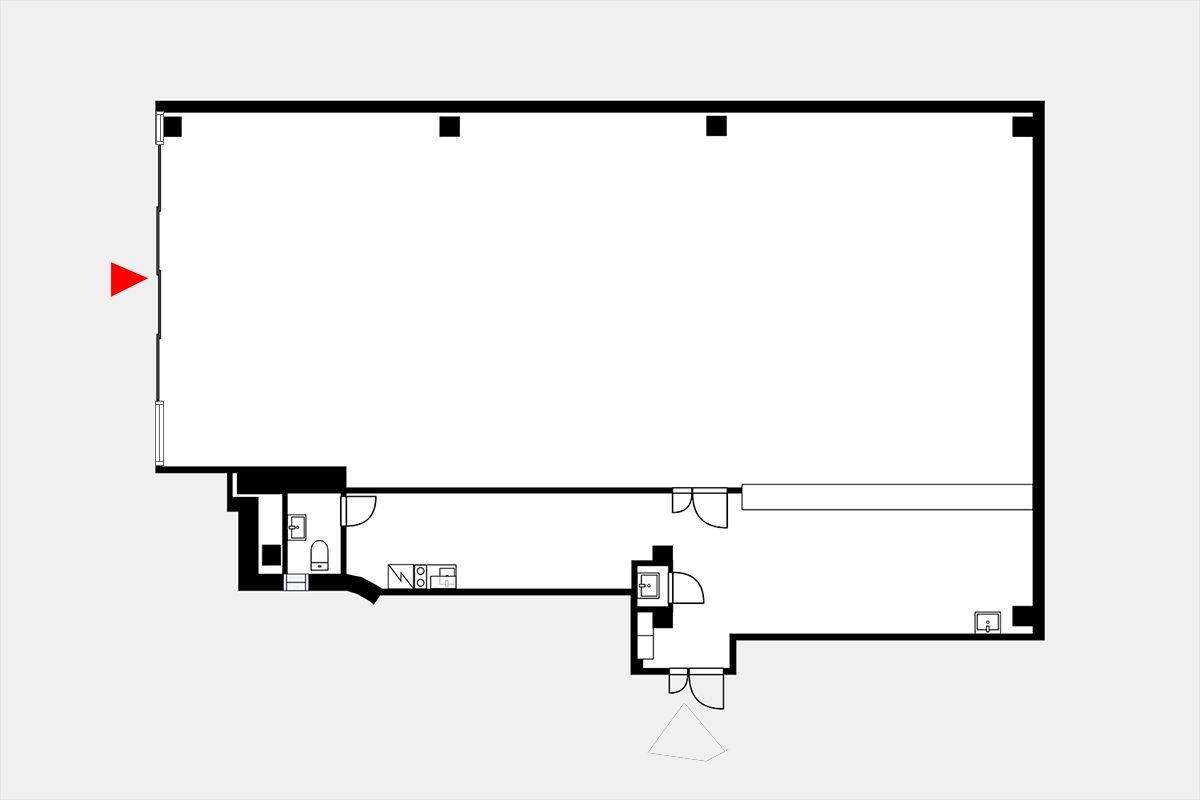
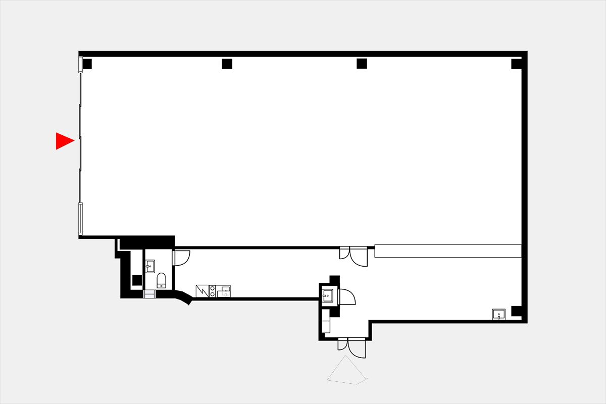
Siisti liiketila näkyvällä paikalla kauppakeskuksen toisessa kerroksessa. Kauppakeskus Metropol sijaitsee keskeisellä paikalla Joensuun keskustassa.
Lisätietoja numerosta 020 7290 710. Lisää kohteita osoitteessa www.premises.fi.
Kohteella ei ole lain edellyttämää energiatodistusta.Kerros: 2
CRE PREMISES
Puh. Näytä puhelinnumero 020 7290 710
Vantaankoskentie 14
01670 VANTAA
