Vuokrataan toimistotilat - Helsinki
Trigora, Urho Kekkosen katu 3-7, Kamppi, 00100 Helsinki #10793250
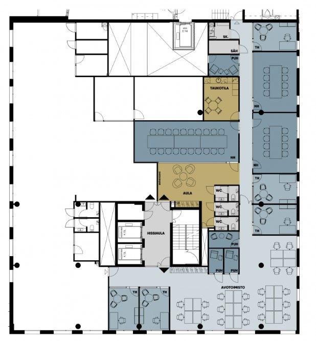
Laadukas n. 383 m2 toimisto paraatipaikalla aivan Kampin sydämessä. Tilassa on tällä hetkellä erikokoisia neuvotteluhuoneita, toimistohuoneita sekä avotoimistoa. Vapaana oleva kerros on kokonaisuudessaan 735m2, joka voidaan jakaa kahdelle toimijalle. Koko ja ehdotettu pohja on esimerkki, näitä voidaan muokata juuri teidän tarpeidenne mukaisesti. Tila sijaitsee Urhontornin 5. kerroksessa. Ota yhteyttä ja sovi esittely, palvelumme on tilanhakijoille maksutonta. puh. 09 7745 100.
Osoite
Urho Kekkosen katu 3-7, 00100 Helsinki
Tilatyyppi
Toimistotilaa
383 m2
Kiinteistö
Urhontorni on osa Kampin kauppakeskuksen yhteydessä sijaitsevaa toimistorakennuskokonaisuutta Trigoraa. Trigora on rakennettu 2005, toimistotilaa kolmessa tornissa on yhteensä 12 000 m² ja kokonaisuuden on suunnitellut Pekka Helin. Torneista on suora yhteys kauppakeskukseen, joten kattavat palvelut, ravintolamaailma, kaupat, julkiset kulkuvälineet ja parkkihallit välittömässä läheisyydessä.
Sijainti
Kampin kauppakeskuksen yhteydessä.
Ympäristö
Kampin liike ja toimistokeskus
Pysäköinti
Maanalainen parkkihallisto.
Palvelut
Kampin liikekeskus.
Kulkuyhteydet
Metro, bussit, ratikat.
Muuta
HUOM! - kohdekuvat edustavat talon yleistä kuvaa sisätiloista, eivätkä kaikki välttämättä ole juuri tästä kyseisestä toimistosta.
Vapautuu
Heti
Rakennusvuosi
2005
Kerros
5 / 8
Energiatehokkuusluokka
Ei lain edellyttämää energiatodistusta
Näkyvällä paikalla
Hissi
Ota yhteyttä
Senaatin Notariaatti Oy LKV
Lämmittäjänkatu 4 A
FIN-00880 Helsinki
Tel:
Näytä puhelinnumero
+358 9 7745 100
Pyydä lisätietoa
