Vuokrataan toimistotilat - Helsinki
Pohjoinen Rautatienkatu 25, Kamppi, 00100 Helsinki #10793232
Laadukasta toimistotilaa Helsingin keskustassa
Osoite
Pohjoinen Rautatienkatu 25, 00100 Helsinki
Tilatyyppi
Toimistotilaa
209 - 638 m2
Tilajako
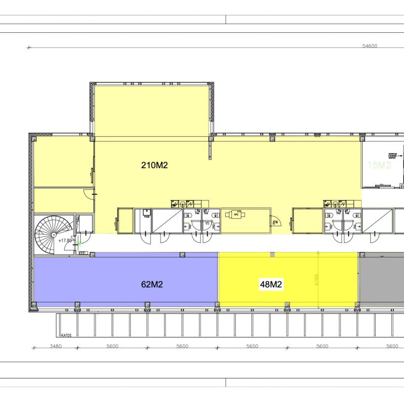
Vapaat tilat: 210m² / 616,5m² / 636m² 638m²
Kiinteistö
Laadukasta toimistotilaa Helsingin keskustassa
PR25:n kiinteistöstä Pohjoiselta Rautatiekadulta löytyy viihtyisää toimistotilaa Kampin kupeesta. Toimistokerrokset ovat selkeitä ja helposti muokattavissa.
Kevan omistama moderni ja laadukas vuosina 2016-2017 täysin remontoitu toimistokiinteistö sijaitsee keskeisellä paikalla Helsingin keskustassa. Tekniikaltaan talo on uudenveroinen ja se tarjoaa viihtyisät työtilat 200-300 henkilölle.
Vapaat toimitilat:
- 616,5 m² / 2. kerros
- 638 m² / 3. kerros
- 210 m² / 2. kerros
- 636m² / 5.& 4. krs
Valoisassa ja viihtyisässä rakennuksessa on seitsemän maanpäällistä toimistokerrosta, kaksi kellarikerrosta, joissa on tilava pyöräkellari pukuhuoneineen ja varastotilaa sekä pysäköintihalli 15 autolle. Ensimmäisen kerroksen neuvottelu- ja kokoustilat ovat kaikkien vuokralaisten yhteiskäytössä.
PR25:n kiinteistöstä Pohjoiselta Rautatiekadulta löytyy viihtyisää toimistotilaa Kampin kupeesta. Toimistokerrokset ovat selkeitä ja helposti muokattavissa.
Kevan omistama moderni ja laadukas vuosina 2016-2017 täysin remontoitu toimistokiinteistö sijaitsee keskeisellä paikalla Helsingin keskustassa. Tekniikaltaan talo on uudenveroinen ja se tarjoaa viihtyisät työtilat 200-300 henkilölle.
Vapaat toimitilat:
- 616,5 m² / 2. kerros
- 638 m² / 3. kerros
- 210 m² / 2. kerros
- 636m² / 5.& 4. krs
Valoisassa ja viihtyisässä rakennuksessa on seitsemän maanpäällistä toimistokerrosta, kaksi kellarikerrosta, joissa on tilava pyöräkellari pukuhuoneineen ja varastotilaa sekä pysäköintihalli 15 autolle. Ensimmäisen kerroksen neuvottelu- ja kokoustilat ovat kaikkien vuokralaisten yhteiskäytössä.
Sijainti
Kiinteistön sijainti metron ja Kampin bussiterminaalin tuntumassa pyöräilyn pääväylä Baanan varrella on erinomainen.
Vapautuu
Heti
Energiatehokkuusluokka
Ei lain edellyttämää energiatodistusta
Näkyvällä paikalla
Ota yhteyttä
Arvo Premises Oy
Joakim Kukkonen
Osakas, Toimitilavälittäjä
Näytä puhelinnumero
040 555 8106
Seppo Pakarinen
Osakas, Kiinteistönvälittäjä. LKV, YKV, AKA
Näytä puhelinnumero
040-703 8000
Pyydä lisätietoa
