Vuokrataan toimistotilat - Helsinki
Töölönkatu 4, Etu-Töölö, 00100 Helsinki #10793210
Vuokrataan toimistotilaa Helsingin Kuparitalon modernista kiinteistöstä aivan Eduskuntatalon vieressä.
Osoite
Töölönkatu 4, 00100 Helsinki
Tilatyyppi
Toimistotilaa
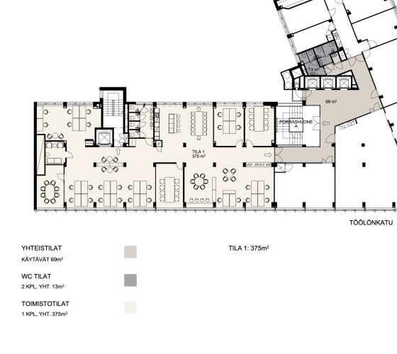
370 m2
Tilajako
Vapaat tilat: 22, 130, 140, 375, 876m²
Kiinteistö
Vapaana toimistotilaa modernista kiinteistöstä Etu-Töölössä.
Helsingin Kuparitalo on arvokkaan oloinen, mutta moderni kiinteistö valtakunnan päätöksenteon ytimessä aivan Eduskuntatalon vieressä. Historiasta Outokummun pääkonttorina kertoo niin julkisivussa kuin monissa sisätiloissakin käytetty kupari.
Vuokrattavan toimitilan tiedot:
- Pinta-ala: 370 m²
- Tilatyyppi: Toimistotila
- Kerros: 4
Talo tarjoaa henkilöstöravintolan ja poikkeuksellisen hyvät catering-palvelut.
Ota yhteyttä ja kysy lisää!
Helsingin Kuparitalo on arvokkaan oloinen, mutta moderni kiinteistö valtakunnan päätöksenteon ytimessä aivan Eduskuntatalon vieressä. Historiasta Outokummun pääkonttorina kertoo niin julkisivussa kuin monissa sisätiloissakin käytetty kupari.
Vuokrattavan toimitilan tiedot:
- Pinta-ala: 370 m²
- Tilatyyppi: Toimistotila
- Kerros: 4
Talo tarjoaa henkilöstöravintolan ja poikkeuksellisen hyvät catering-palvelut.
Ota yhteyttä ja kysy lisää!
Sijainti
Kuparitalo sijaitsee Etu-Töölössä erinomaisten kulkuyhteyksien, kulttuuririentojen ja palveluiden keskellä, vajaan vartin kävelymatkan päässä rautatieasemalta ja Kampin keskuksesta.
Vapautuu
Heti
Energiatehokkuusluokka
Ei lain edellyttämää energiatodistusta
Näkyvällä paikalla
Ota yhteyttä
Arvo Premises Oy
Joakim Kukkonen
Osakas, Toimitilavälittäjä
Näytä puhelinnumero
040 555 8106
Seppo Pakarinen
Osakas, Kiinteistönvälittäjä. LKV, YKV, AKA
Näytä puhelinnumero
040-703 8000
Pyydä lisätietoa
