













Vuokrataan varastotilat - Tuusula
Vanha Tuusulantie 198, 04360 Tuusula #10793137
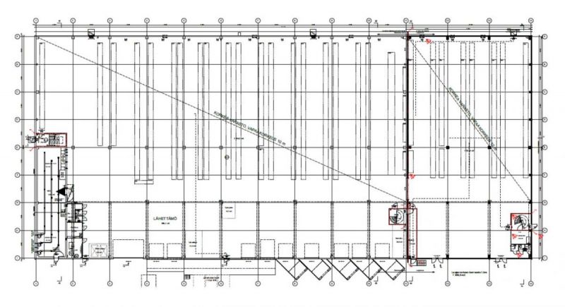
Vuokrataan uudenveroinen varasto- ja logistiikkakohde näkyvältä sijainnilta Tuusulanväylän varrelta. Kohde on rakennettu vuonna
2016 ja myöhemmin laajennettu nykyiseen muotoonsa. Varaston vapaa korkeus on 10 metriä, parvella korkeus 3,5 metriä. Varastossa on valmiina hyllyjärjestelmät, jotka mahdollistavat jopa 5400 eurolavan varastoinnin. 5 lastaustaskua, lastauslaituri sekä sisäänajomahdollisuus pihatasosta.
Hyvä sijainti Tuusulanväylän varrella avaa kohteelta reitit tärkeimpiin tavaraliikenneterminaaleihin sekä valtaväylille kaikkialle Suomeen.
Lisätietoja soita 020 730 4530 tai info@repoint.fi. Palvelumme on tilanhakijalle ilmainen.
Repoint Toimitilat Oy
Itälahdenkatu 22 B, 00210 Helsinki
Näytä puhelinnumero
020 730 4530
Lisätietoja soita Näytä puhelinnumero 020 730 4530 tai info@repoint.fi
https://repoint.fi/