Vuokrataan toimistotilat - Helsinki
Haapaniemenkatu 7-9, Hakaniemi, 00530 Helsinki #10793098
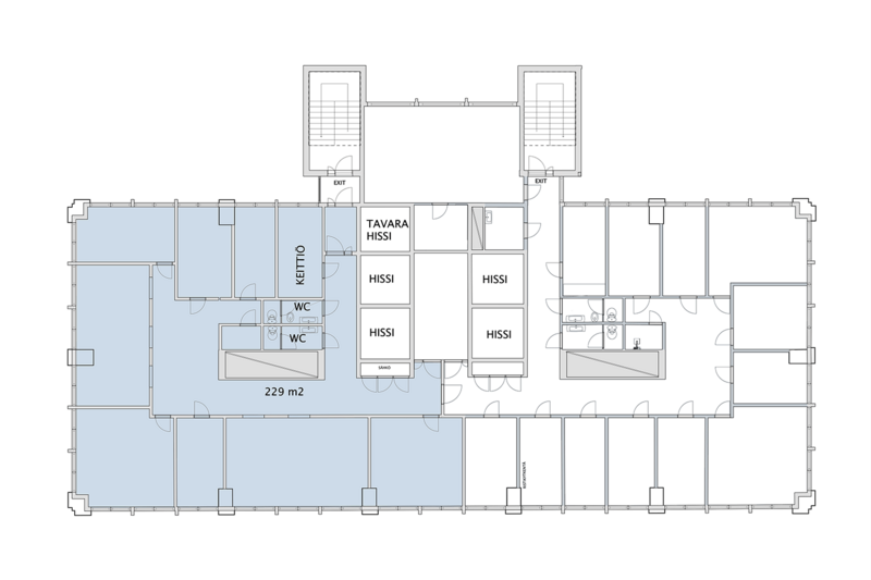
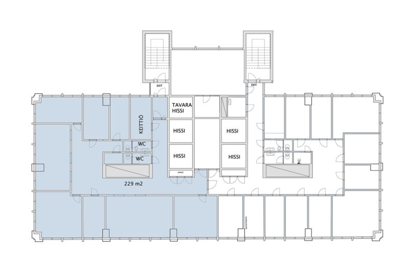
Siisti ja valoisa 229 m² toimisto Merihaan Meritornin 12. kerroksesta.
Osoite
Haapaniemenkatu 7-9, 00530 Helsinki
Tilatyyppi
Toimistotilaa
229 m2
Pohjapiirros
Kiinteistö
Siistissä kunnossa oleva muuttovalmis toimistotila, josta on upeat näkymät. Työhuoneista ja avotyötilaa sisältävä kokonaisuus.
Upeilla merinäköaloilla varustettu Meritorni on yksi Helsingin maamerkkirakennuksista. Kohde sijaitsee näkyvällä ja helposti saavutettavalla paikalla Merihaassa, Hakaniemen sillan kupeessa.
Meritorni tarjoaa hulppein näköaloin varustettuja toimitiloja meren äärellä kilpailukykyiseen hintaan. Muuntojoustavia tiloja on tarjolla joustavin sopimusehdoin monenlaisen käyttäjän tarpeeseen.
Meritornista löydät niin lyhytaikaiseen vuokraukseen soveltuvia edullisia pientoimistoja kuin koko kerroksen kattavia toimitiloja suuremmille yrityksille. Tiloja voidaan vuokrata myös arvonlisäverottomaan käyttöön järjestöille ja yhdistyksille.
Upeilla merinäköaloilla varustettu Meritorni on yksi Helsingin maamerkkirakennuksista. Kohde sijaitsee näkyvällä ja helposti saavutettavalla paikalla Merihaassa, Hakaniemen sillan kupeessa.
Meritorni tarjoaa hulppein näköaloin varustettuja toimitiloja meren äärellä kilpailukykyiseen hintaan. Muuntojoustavia tiloja on tarjolla joustavin sopimusehdoin monenlaisen käyttäjän tarpeeseen.
Meritornista löydät niin lyhytaikaiseen vuokraukseen soveltuvia edullisia pientoimistoja kuin koko kerroksen kattavia toimitiloja suuremmille yrityksille. Tiloja voidaan vuokrata myös arvonlisäverottomaan käyttöön järjestöille ja yhdistyksille.
Vapautuu
Heti
Kerros
12
Energiatehokkuusluokka
Ei lain edellyttämää energiatodistusta
Näkyvällä paikalla
Hissi
Ota yhteyttä
ScanReal Oy LKV
Opus Business Park
Hitsaajankatu 24
00810 Helsinki
info@scanreal.fi
Puh:
Näytä puhelinnumero
020 730 8830
Sopivat toimitilat yhdellä otolla!
Kartoitamme toimitilatarpeesi ja etsimme yrityksellesi parhaiten sopivat vapaat toimitilat. Koska vuokranantajat maksavat palvelumme, on tämä yrityksellesi veloituksetonta.
OTA YHTEYTTÄ - SOVI NÄYTTÖ!
Kaikki kohteemme eivät ole netissä, kerro tilatarpeesi niin kartoitamme vaihtoehdot.
Palvelumme on tilanhakijalle ilmainen
Pyydä lisätietoa
