Vuokrataan toimistotilat - Espoo
Kutojantie 7, Kilo, 02630 Espoo #10793083
Toimistotilaa Espoon Kilossa
Osoite
Kutojantie 7, 02630 Espoo
Tilatyyppi
Toimistotilaa
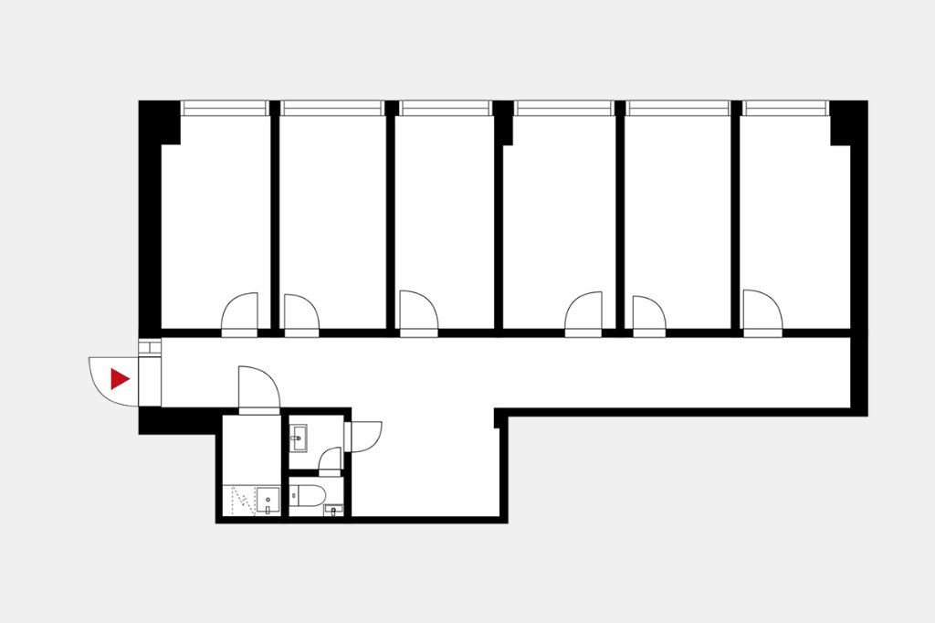
102 m2
Pysäköinti
Kyllä
Muuta
Valoisaa ja siistiä toimistotilaa erinomaisella sijainnilla Espoon Kilossa, vuokrattava tila on 4. kerroksen 102 m² toimistotila.
Valoisa ja siisti toimistotila. Kellarikerroksesta on vuokrattavissa pienvarastotilaa. Ylimmässä kerroksessa on vuokrattavissa saunaosasto neuvottelutiloineen. Espoon Kiloon on hyvät kulkuyhteydet ja Keran rautatieseisakkeelle on matkaa noin 500 metriä. Oman auton käyttäjiä palvelee piha-alueen runsaat autopaikat ja muutamia autopaikkoja löytyy autokatoksesta.
Tervetuloa tutustumaan, varaathan välittäjältä oman esittelyaikasi. Voit kysyä meiltä myös muita sopivia vaihtoehtoja, kauttamme löydät juuri Teidän tarpeisiinne sopivat tilat. Palvelumme on tilanhakijalle veloitukseton!
Valoisa ja siisti toimistotila. Kellarikerroksesta on vuokrattavissa pienvarastotilaa. Ylimmässä kerroksessa on vuokrattavissa saunaosasto neuvottelutiloineen. Espoon Kiloon on hyvät kulkuyhteydet ja Keran rautatieseisakkeelle on matkaa noin 500 metriä. Oman auton käyttäjiä palvelee piha-alueen runsaat autopaikat ja muutamia autopaikkoja löytyy autokatoksesta.
Tervetuloa tutustumaan, varaathan välittäjältä oman esittelyaikasi. Voit kysyä meiltä myös muita sopivia vaihtoehtoja, kauttamme löydät juuri Teidän tarpeisiinne sopivat tilat. Palvelumme on tilanhakijalle veloitukseton!
Vapautuu
Kysy
Rakennusvuosi
1991
Kerros
4
Ota yhteyttä
Tuloskiinteistöt Oy
Rikhardinkatu 2 B 5, 00130 Helsinki
Näytä puhelinnumero
(09) 6841 620
Otto Ahtola
Commercial Real Estate Advisor
Näytä puhelinnumero
+358 40 042 2830
Jorma Ryynänen
Commercial Real Estate Advisor LKV, LVV
Näytä puhelinnumero
+358 40 708 4064
Pyydä lisätietoa
