Vuokrataan liiketilat, varastotilat, muut tilat - Pori
Korjuuntie 23, Aittaluoto, 28360 Pori #10793079
Halli
Osoite
Korjuuntie 23, 28360 Pori
Tilatyyppi
Liiketilaa
3600 m2
Varastotilaa
3600 m2
Muuta tilaa
3600 m2
Yhteensä
3600 m2
Kiinteistö
Uutta vastaava halli Aittaluodossa
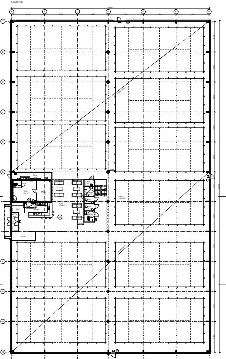
Sopimuksen mukaan vapautuva hallitila hyvällä kauppapaikalla vuokrattavissa. Halli on rakennettu padelhalliksi liikuntakäyttöön ja siksi tiloissa on laadukkaat ja isot pukuhuone- ja suihkutilat. Kaava TK-9 teollisuus-, varasto-, liike- ja toimistorakennusten korttelialue antaa mahdollisuuden muuhunkin yritystoimintaan kuin liikuntatoimintaan.
Tilat koostuvat
1.kerroksen avarista hallitiloista vastaanotolla, jonka yhteydessä pieni myymälätila, oleskelualue sekä toimisto.
2. kerroksessa sijaitsevat pukuhuone-, suihku- ja saunatilat.
Lattian kantavuus 500 kg / m2.
Kaukolämpö.
Aittaluodon alueella toimii paljon erilaisia suurmyymälöitä ja välittömässä läheisyydessä useita autoliikkeitä.
Lisätietoja varten otathan yhteyttä!
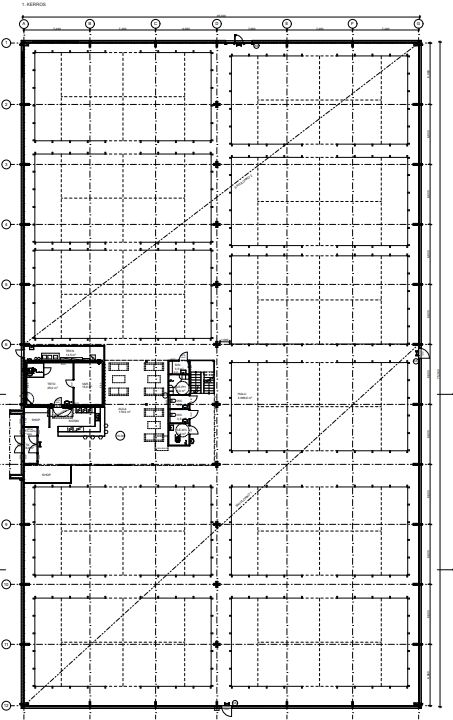
Sopimuksen mukaan vapautuva hallitila hyvällä kauppapaikalla vuokrattavissa. Halli on rakennettu padelhalliksi liikuntakäyttöön ja siksi tiloissa on laadukkaat ja isot pukuhuone- ja suihkutilat. Kaava TK-9 teollisuus-, varasto-, liike- ja toimistorakennusten korttelialue antaa mahdollisuuden muuhunkin yritystoimintaan kuin liikuntatoimintaan.
Tilat koostuvat
1.kerroksen avarista hallitiloista vastaanotolla, jonka yhteydessä pieni myymälätila, oleskelualue sekä toimisto.
2. kerroksessa sijaitsevat pukuhuone-, suihku- ja saunatilat.
Lattian kantavuus 500 kg / m2.
Kaukolämpö.
Aittaluodon alueella toimii paljon erilaisia suurmyymälöitä ja välittömässä läheisyydessä useita autoliikkeitä.
Lisätietoja varten otathan yhteyttä!
Vapautuu
Kysy
Kerros
1. ja 2.
Ota yhteyttä
Logistila Oy
Tuureporinkatu 6, 20100 TURKU
Stina Lindroos
Näytä puhelinnumero
044 972 9468
Pyydä lisätietoa
