Vuokrataan toimistotilat, liiketilat, näyttelytilat - Oulu
Hallituskatu 20, 90100 Oulu #10793069
Vuokrataan hyvätasoinen katutason liike-/toimistohuoneisto aivan ydinkeskustan tuntumasta.
Huoneiston mukavuudesta huolehtii koneellinen ilmanvaihto jäähdytyksen kera.
Keskustan lounaspaikat kivenheiton päässä.
Osoite
Hallituskatu 20, 90100 Oulu
Tilatyyppi
Toimistotilaa
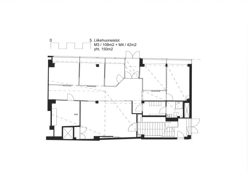
150 m2
Liiketilaa
150 m2
Näyttelytilaa
150 m2
Yhteensä
150 m2
Tilajako
5 toimistohuonetta. neuvotteluhuone, taukotila sekä suihkullinen sos.tila
Pohjapiirros
Vuokra
3.900€/kk + alv, lisäksi käyttösähkö ja vesi
Vuokraan sisältyy lämpö
Pysäköinti
Autohallista parkkipaikkoja
Palvelut
Ydinkeskustan
Kulkuyhteydet
Bussit Kajaaninkatua ja Heikinkatua pitkin
Muuta
Rakennuksessa on kuituverkko
Vapautuu
Sopimuksen mukaan nopeastikin
Kerros
1 / 10
Huoneiden lukumäärä
7
Energiatehokkuusluokka
D2018
E-luku
200 kWhE/m²/vuosi
Katutasossa
Näkyvällä paikalla
Liitetiedostot
Ota yhteyttä
Pohjois-Suomen Toimitilat Oy
Sepänkatu 20, 90100 Oulu
Pekka Valkola
Näytä puhelinnumero
044 311 0555
Pyydä lisätietoa
