Vuokrataan toimistotilat - Espoo
Tarvonsalmenkatu 17, Perkkaa, 02600 Espoo #10792979
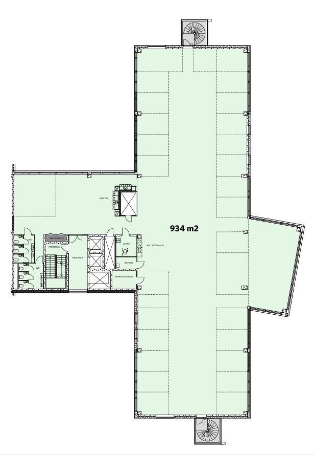
Vuokrattavana koko kerroksen hyväkuntoista, tehokasta toimistotilaa.
Osoite
Tarvonsalmenkatu 17, 02600 Espoo
Tilatyyppi
Toimistotilaa
934 m2
Tilajako
Jaettavissa
Kiinteistö
Vuokrattavana koko kerroksen hyväkuntoista, tehokasta toimistotilaa. Tilaan on neljä sisäänkäyntiä.
Sijainti
Perkkaa, Espoo
Pysäköinti
Derbyn oma pysäköintihalli, jossa runsaasti pysäköintioikeuksia ja sähkölatauspisteitä.
Palvelut
-Aulapalvelu
-Lounasravintola ja kahvila
-Vuokrattavia neuvottelu- ja kokoustiloja
-Saunatilat
-Kuntosali
-Lounasravintola ja kahvila
-Vuokrattavia neuvottelu- ja kokoustiloja
-Saunatilat
-Kuntosali
Kulkuyhteydet
-Bussi
-Oma auto
-Oma auto
Vapautuu
Heti
Kerros
6
Energiatehokkuusluokka
Ei lain edellyttämää energiatodistusta
Näkyvällä paikalla
Jaettavissa
Hissi
Ota yhteyttä
REALIUM OY LKV
Tammasaarenkatu 1, 00180 Helsinki
Vaihde:
Näytä puhelinnumero
010 326 346
Tuomo Mäkelä
tuomo.makela@realium.fi
p.
Näytä puhelinnumero
044 050 1158
Joel Keto
joel.keto@realium.fi
p.
Näytä puhelinnumero
045 317 0330
KAIKKI TILAVAIHTOEHDOT KERRALLA!
SOITA - MEILAA JA TILAA NÄYTTÖ!
Ilmainen palvelu tilanhakijoille.
Kartoitamme parhaat tilavaihtoehdot.
Kaikki kohteet eivät ole netissä.
Pyydä lisätietoa
