Vuokrataan toimistotilat - Helsinki
Lintulahdenkulma, Lintulahdenkatu 10, Sörnäinen, 00500 Helsinki #10792956
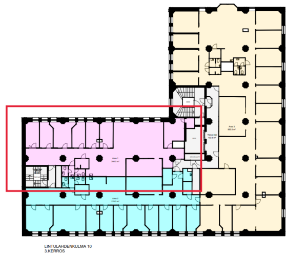
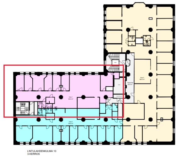
Valoisa ja edustava 244,5 m² toimistotila modernissa kiinteistössä Helsingin Sörnäisissä.
Osoite
Lintulahdenkatu 10, 00500 Helsinki
Tilatyyppi
Toimistotilaa
244,5 m2
Pohjapiirros
Kiinteistö
Valoisa ja edustava 244,5 m² toimistotila modernissa kiinteistössä Helsingin Sörnäisissä. Ilmoituksen sisäkuvat ovat yleiskuvia kiinteistön eri tiloista.
Kiinteistöstä löytyy lounasravintola, aulapalvelu, neuvottelutilat, auditorio ja edustussauna. Tiloissa jäähdytetty ilmanvaihto.
Rakennushistoriallisesti arvokkaan rakennuksen tämän päivän vaatimuksia vastaaviksi saneeratuissa tiloissa on talon hengen mukaisesti persoonallista rosoisuutta. Tilat joustavat helposti käyttäjän tarpeita vastaaviksi.
Rakennus on arkkitehti Väinö Vähäkallion suunnittelema, jota nykyisin arvostetaan yhdeksi 1920-luvun tiiliklassismin merkittävimmistä monumenteista. Oman aikansa avantgardea edustanut rakennus valmistui alun perin vuonna 1927 OTK:n Sörnäisten keskusvarastoksi. Nykyisin tässä entisessä keskusvarastorakennuksessa on valoisat työtilat 230 henkilölle.
Kaksisiipisessä rakennuksessa on yhdeksän kerrosta ja ullakko. Talon ensimmäisessä kerroksessa toimii hyvä lounasravintola ja ylimpään ullakkotilaan on rakennettu edustustilat ja sauna sekä kokoustiloja tarjoava neuvottelumaailma.
Nykyaikaistetut toimitilat sijaitsevat keskeisellä paikalla Sörnäisissä hyvien liikenneyhteyksien varrella.
Kiinteistöstä löytyy lounasravintola, aulapalvelu, neuvottelutilat, auditorio ja edustussauna. Tiloissa jäähdytetty ilmanvaihto.
Rakennushistoriallisesti arvokkaan rakennuksen tämän päivän vaatimuksia vastaaviksi saneeratuissa tiloissa on talon hengen mukaisesti persoonallista rosoisuutta. Tilat joustavat helposti käyttäjän tarpeita vastaaviksi.
Rakennus on arkkitehti Väinö Vähäkallion suunnittelema, jota nykyisin arvostetaan yhdeksi 1920-luvun tiiliklassismin merkittävimmistä monumenteista. Oman aikansa avantgardea edustanut rakennus valmistui alun perin vuonna 1927 OTK:n Sörnäisten keskusvarastoksi. Nykyisin tässä entisessä keskusvarastorakennuksessa on valoisat työtilat 230 henkilölle.
Kaksisiipisessä rakennuksessa on yhdeksän kerrosta ja ullakko. Talon ensimmäisessä kerroksessa toimii hyvä lounasravintola ja ylimpään ullakkotilaan on rakennettu edustustilat ja sauna sekä kokoustiloja tarjoava neuvottelumaailma.
Nykyaikaistetut toimitilat sijaitsevat keskeisellä paikalla Sörnäisissä hyvien liikenneyhteyksien varrella.
Vapautuu
Heti
Rakennusvuosi
1927
Kerros
3 / 10
Energiatehokkuusluokka
Ei lain edellyttämää energiatodistusta
Näkyvällä paikalla
Hissi
Ota yhteyttä
ScanReal Oy LKV
Opus Business Park
Hitsaajankatu 24
00810 Helsinki
info@scanreal.fi
Puh:
Näytä puhelinnumero
020 730 8830
Sopivat toimitilat yhdellä otolla!
Kartoitamme toimitilatarpeesi ja etsimme yrityksellesi parhaiten sopivat vapaat toimitilat. Koska vuokranantajat maksavat palvelumme, on tämä yrityksellesi veloituksetonta.
OTA YHTEYTTÄ - SOVI NÄYTTÖ!
Kaikki kohteemme eivät ole netissä, kerro tilatarpeesi niin kartoitamme vaihtoehdot.
Palvelumme on tilanhakijalle ilmainen
Pyydä lisätietoa
