Vuokrataan toimistotilat - Helsinki
Tallberginkatu 2, Ruoholahti, 00180 Helsinki #10792758
Uniikissa Tallbergintalossa toimistotiloja vapaana.
Osoite
Tallberginkatu 2, 00180 Helsinki
Tilatyyppi
Toimistotilaa
93 - 133 m2
Tilajako
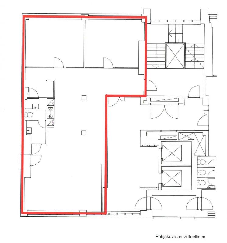
Vapaita tiloja: 1. kerros 93m² / 1. kerros 106.5m² / 2. kerros 132m² / 6. kerros 133m²
Pohjapiirros
Kiinteistö
Upeasta Tallbergintalosta toimistotiloja vapaana.
Vapaita tiloja: 1. kerros 93m² / 1. kerros 106.5m² / 2. kerros 132m² / 6. kerros 133m²
- 1. kerros 93m² Kompakti katutason tila yhdellä pikkuhuoneella sisääntulossa. Oma varasto, keittiö sekä wc. Tilaan käynti vasta remontoidusta katutason aulasta. Voidaan remontoida asiakkaan toiveiden mukaisesti.
- 1. kerros 106.5m² Kompakti siisti katutason toimisto B-rapussa. Muuttovalmis tila.
- 2. kerros 132m² Muuttovalmis toimisto Tallbergintalon 2. kerroksessa 3 vetäytymishuoneella. Tilaan liittyy naapurin kanssa yhteiskäyttöinen parveke.
- 6. kerros 133m² Kuudennen kerroksen muuttovalmis kodikas toimisto kahdella huoneella.
Vapaita tiloja: 1. kerros 93m² / 1. kerros 106.5m² / 2. kerros 132m² / 6. kerros 133m²
- 1. kerros 93m² Kompakti katutason tila yhdellä pikkuhuoneella sisääntulossa. Oma varasto, keittiö sekä wc. Tilaan käynti vasta remontoidusta katutason aulasta. Voidaan remontoida asiakkaan toiveiden mukaisesti.
- 1. kerros 106.5m² Kompakti siisti katutason toimisto B-rapussa. Muuttovalmis tila.
- 2. kerros 132m² Muuttovalmis toimisto Tallbergintalon 2. kerroksessa 3 vetäytymishuoneella. Tilaan liittyy naapurin kanssa yhteiskäyttöinen parveke.
- 6. kerros 133m² Kuudennen kerroksen muuttovalmis kodikas toimisto kahdella huoneella.
Sijainti
Ruoholahti on merkittävästi kasvava ja kehittyvä merellinen kaupunginosa Helsingin keskustassa.
Alue tarjoaa monipuolisia palveluja ja on helposti saavutettavissa niin raitiovaunulla kuin omalla autollakin. Lisäksi Ruoholahden metroasema on vain lyhyen kävelymatkan päässä, mikä tekee liikkumisesta alueella vaivatonta.
Alue tarjoaa monipuolisia palveluja ja on helposti saavutettavissa niin raitiovaunulla kuin omalla autollakin. Lisäksi Ruoholahden metroasema on vain lyhyen kävelymatkan päässä, mikä tekee liikkumisesta alueella vaivatonta.
Vapautuu
Heti
Energiatehokkuusluokka
Ei lain edellyttämää energiatodistusta
Näkyvällä paikalla
Ota yhteyttä
Arvo Premises Oy
Joakim Kukkonen
Osakas, Toimitilavälittäjä
Näytä puhelinnumero
040 555 8106
Seppo Pakarinen
Osakas, Kiinteistönvälittäjä. LKV, YKV, AKA
Näytä puhelinnumero
040-703 8000
Pyydä lisätietoa
