Vuokrataan toimistotilat - Helsinki
Kumpulantie 5, Vallila, 00130 Helsinki #10792746
Vapaata toimitilaa Kumpulantie 5.
Osoite
Kumpulantie 5, 00130 Helsinki
Tilatyyppi
Toimistotilaa
230 - 783,5 m2
Kiinteistö
Vapaata toimitilaa Kumpulantie 5.
Vapaat toimistotilat:
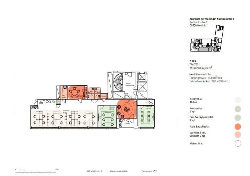
- 236m², 7 kerros. Ylimmän kerroksen toimisto, jossa on käytössä oma parveke. Tehokas toimisto avotilalla ja kahdella neuvotteluhuoneella.
- 783.5m², 5 kerros.
- 312m², 4 kerros. Muuttovalmis toimisto, jossa avotyöskentelytilaa ja valmiita neuvotteluhuoneita.
- 686m², 6 kerros.
Vapaat toimistotilat:
- 236m², 7 kerros. Ylimmän kerroksen toimisto, jossa on käytössä oma parveke. Tehokas toimisto avotilalla ja kahdella neuvotteluhuoneella.
- 783.5m², 5 kerros.
- 312m², 4 kerros. Muuttovalmis toimisto, jossa avotyöskentelytilaa ja valmiita neuvotteluhuoneita.
- 686m², 6 kerros.
Vapautuu
Heti
Näkyvällä paikalla
Ota yhteyttä
Arvo Premises Oy
Joakim Kukkonen
Osakas, Toimitilavälittäjä
Näytä puhelinnumero
040 555 8106
Seppo Pakarinen
Osakas, Kiinteistönvälittäjä. LKV, YKV, AKA
Näytä puhelinnumero
040-703 8000
Pyydä lisätietoa
