Vuokrataan toimistotilat - Helsinki
Osmontie 34, Käpylä, 00610 Helsinki #10792727
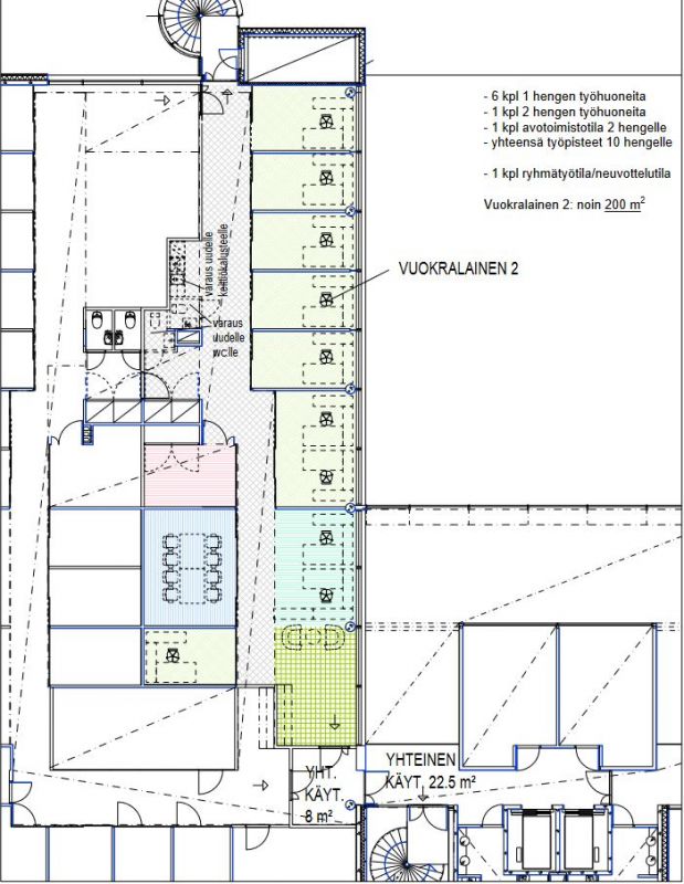
Vapaana on 4. kerroksen 200 m2 toimistotila joka on remontoitu noin vuosi sitten.
Osmontie 34 sijaitsee erinomaisella paikalla aivan Käpylän aseman vieressä. Julkiset liikenneyhteydet ovat erinomaiset ja autolla pääsee ripeästi perille läheiseltä Tuusulanväylältä. Asiakasyrityksesi saa myös erinomaisen näkyvyyden valomainoksilla, jotka näkyvät niin Tuusulanväylälle kuin pääradallekin.
Osmontie 34 on rakennettu vuonna 2007, joten talotekniikka on edelleen hyvässä kunnossa. Tarjottavat tilat ovat suhteellisen hyvässä kunnossa, joten sisään pääsee muuttamaan nopeallakin aikataululla. Kiinteistössä on
suosittu lounasravintola sekä käytön mukaan varattavia neuvottelutiloja.
Lisätietoja numerosta 020 7290 710. Lisää kohteita osoitteessa www.premises.fi.
Kohteella ei ole lain edellyttämää energiatodistusta tai energialuokka ei tiedossa.Kerros: 4
CRE PREMISES
Puh. Näytä puhelinnumero 020 7290 710
Vantaankoskentie 14
01670 VANTAA
