Vuokrataan toimistotilat - Helsinki
Lönnrotinkatu 11, Kamppi, 00120 Helsinki #10792710
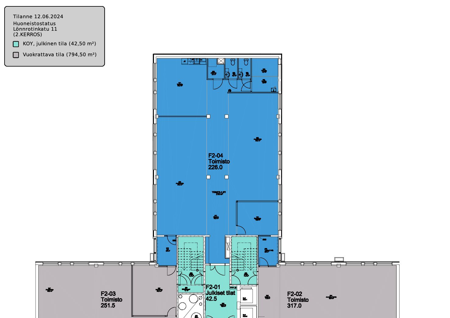
Vuokrataan toimistotilaa toisesta kerroksesta. Kiinteistön sisätilat ja talotekniikka on juuri valmistunut saneerauksesta ja toimistotilat ovat uudenveroisia. Kiinteistössä lounasravintola, pukeutumis- ja pesutilat sekä pyörävarasto. Alueella runsaasti palveluita. Lönnrotinkatu 11 on alun perin vuonna 1972 valmistunut toimistorakennus, joka sijaitsee Helsingin ydinkeskustassa, erinomaisten liikenneyhteyksien äärellä.
Kohde sijaitsee erittäin keskeisellä paikalla Helsingin keskustassa Kampissa, muutaman korttelin päässä Mannerheimintiestä. Puolen kilometrin säteellä sijaitsevat mm. Kampin kauppakeskus, Stockmannin tavaratalo, Forumin kauppakeskus.
Lisätietoja 020 7290 710 ja lisää kohteita premises.fi
Kohteella ei ole lain edellyttämää energiatodistusta tai energialuokka ei tiedossa.Kerros: 2
CRE PREMISES
Puh. Näytä puhelinnumero 020 7290 710
Vantaankoskentie 14
01670 VANTAA
