Vuokrataan toimistotilat - Helsinki
Lönnrotinkatu 11, Keskusta, 00120 Helsinki #10792559
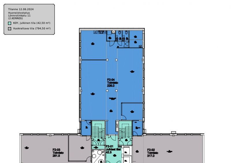
Laadukkaasti saneeratussa kiinteistössä 216 m2 toimisto toisessa kerroksessa Lounasravintola on ja autopaikkoja vuokrattavissa.
Osoite
Lönnrotinkatu 11, 00120 Helsinki
Tilatyyppi
Toimistotilaa
216 m2
Vapautuu
Kysy
Huoneiden lukumäärä
1
Energiatehokkuusluokka
Ei lain edellyttämää energiatodistusta
Ota yhteyttä
RHG Real Estate
Hämeenkatu 2 B20, 20500 Turku
Näytä puhelinnumero
020 734 4020
Mika Tilli
Välittäjä, LKV
Näytä puhelinnumero
0407013005
Pyydä lisätietoa
