Vuokrataan toimistotilat - Tampere
Rautatienkatu 21, Keskusta, 33100 Tampere #10792536
Osoite
Rautatienkatu 21, 33100 Tampere
Tilatyyppi
Toimistotilaa
2000 m2
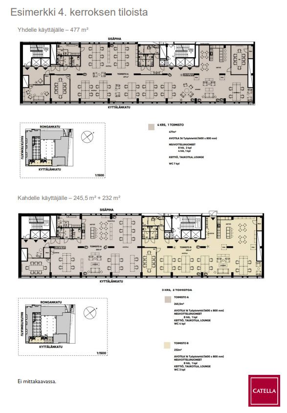
Tilajako
Jaettavissa
Kiinteistö
Vuokrataan toimistotilaa keskustasta Rautatienkadulta. Autopaikkoja saatavilla. Muutostyöt mahdollisia.
Muuta
Vuokrataan Tampereen Postitalosta uudistettuja, viihtyisiä ja vastuullisia toimistotiloja.
Rakennus valmistuu saneerauksesta 2026.
Tilakokonaisuudet on mahdollista toteuttaa 2000 - 5000 m2 välillä.
Vuokralaisella mahdollisuus vaikuttaa kokoon, kerrossijaintiin ja pintamateriaaleihin.
Tilat ovat avoimia ja tilajakoa voidaan muokata joustavasti. Tilasuunnittelussa on hyödynnettävissä sisustusarkkitehtien valmiita designteemoja, joissa on huomioitu mm. kestävän rakentamisen periaatteet.
Rakennuksessa on pysäköintihalli, jossa on sähköauton latauspisteitä, sekä pyöräparkki.
Sijainti on ydinkeskustassa lähellä rautatieasemaa ja keskustan palveluita.
Kysy lisää!
Rakennus valmistuu saneerauksesta 2026.
Tilakokonaisuudet on mahdollista toteuttaa 2000 - 5000 m2 välillä.
Vuokralaisella mahdollisuus vaikuttaa kokoon, kerrossijaintiin ja pintamateriaaleihin.
Tilat ovat avoimia ja tilajakoa voidaan muokata joustavasti. Tilasuunnittelussa on hyödynnettävissä sisustusarkkitehtien valmiita designteemoja, joissa on huomioitu mm. kestävän rakentamisen periaatteet.
Rakennuksessa on pysäköintihalli, jossa on sähköauton latauspisteitä, sekä pyöräparkki.
Sijainti on ydinkeskustassa lähellä rautatieasemaa ja keskustan palveluita.
Kysy lisää!
Lisätietoa saneerauksista
2011
Vapautuu
Valmistuu saneerauksesta vuonna 2026
Kerros
2. - 9. /ylin
Jaettavissa
Ota yhteyttä
Catella Property Oy
Hämeenkatu 13b A, 33100 Tampere
Näytä puhelinnumero
010 5220 100
Sami Saraste
Näytä puhelinnumero
050 3014 455
Pyydä lisätietoa
