Vuokrataan toimistotilat - Helsinki
Pohjoisesplanadi 21, Keskusta, 00100 Helsinki #10792415
Toimistotilaa loistavalla sijainnilla Helsingin keskustassa Pohjoisesplanadilla.
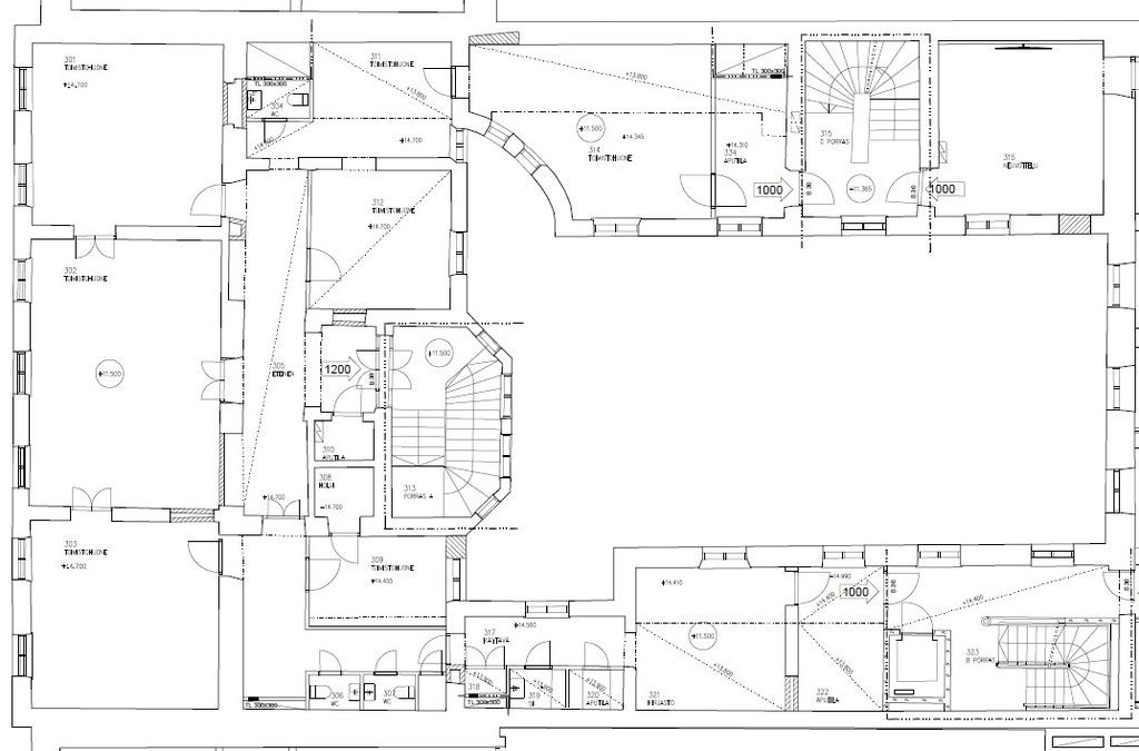
Tämä persoonallinen 3. kerroksen toimistotila on kooltaan 281m2. Tila remontoidaan ennen vuokraamista. Näkymät Esplanadin puiston suuntaan.
Pohjoisesplanadi 21 eli Cavoniuksen talo on Carl Ludvig Engelin suunnittelema. Se on liike- ja toimistokiinteistö, joka sijaitsee Pohjoisesplanadin varrella. Esplanadin alue tunnettaan useista luksusliikkeistään ja ravintoloistaan. Kiinteistöllä on pysäköintipaikkoja.
Kysy lisää numerosta 044 723 4700 tai info@bref.fi. Palvelumme on tilanhakijoille ilmainen.
Hissi
Bureau Real Estate Finland Oy
Lars Sonckin kaari 16, 02600 Espoo
Näytä puhelinnumero
0447234700
Bureau Real Estate Finland Oy
https://www.bref.fi