Vuokrataan toimistotilat - Helsinki
Hämeentie 157, Arabianranta, 00560 Helsinki #10792409
Pientoimistotilaa Helsingin Arabiassa.
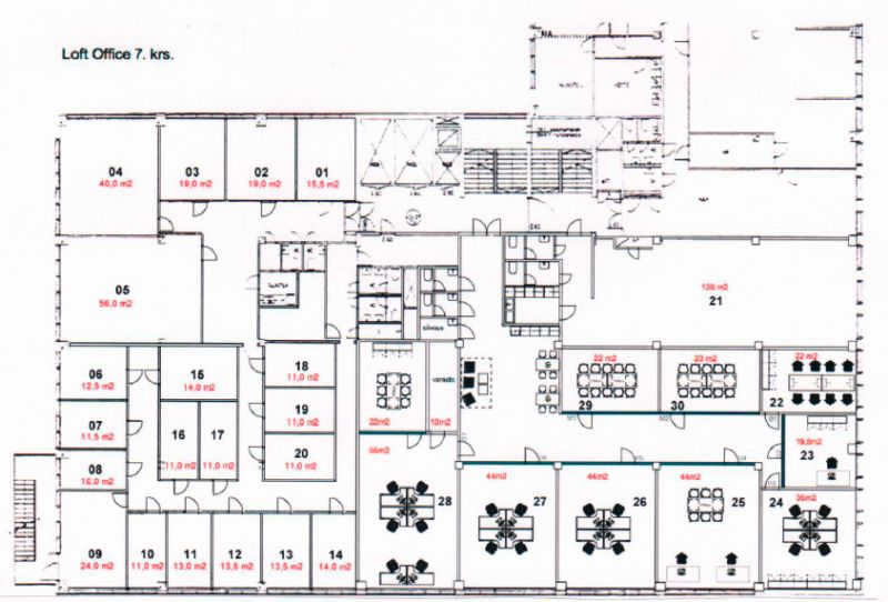
Kyseinen loft- henkinen 138m2 toimistotila sijaitsee kiinteistön 7. kerroksessa. Tila on avonainen, ja siihen kuuluvat omat wc- ja keittiötilat. Toimisto on pohjakuvassa numero 21.
Alue on suosittu erityisesti taide- ja suunnittelualan toimijoille. Loft Officen pientoimistotilat ovat remontoituja. Niiden keittiö- ja wc-tilat ovat koko kerroksen yhteiskäytössä. Toimistotilat ovat erittäin valoisat ja niissä on jäähdytys. Pientoimistot ja Loft-tilat sijaitsevat 6. ja 7. kerroksissa. Niistä on myös hyvät näköalat. Kiinteistössä on myös lastauslaituri ja tavarahissi.
Alueen muodostavat design-, media- ja teknologiayritykset sekä taideteollinen korkeakoulu, Metropolia ammattikorkeakoulu, Audiovisuaalinen oppilaitos, Pop & Jazz Konservatorio ja ruotsinkielinen korkeakoulu Arcada. Arabianrannan ARALIS-kirjastokeskus yhdistää neljän kirjaston palvelut laaja-alaiseksi kulttuurin, taidealan ja median tietopalvelukeskukseksi. Arabianranta on nykyaikainen toimisto- ja asuinympäristö.
Kysy lisää numerosta 044 723 4700 tai info@bref.fi. Palvelumme on tilanhakijoille ilmainen.
Bureau Real Estate Finland Oy
Lars Sonckin kaari 16, 02600 Espoo
Näytä puhelinnumero
0447234700
Bureau Real Estate Finland Oy
https://www.bref.fi