Vuokrataan toimistotilat - Oulu
Elektroniikkatie 6, Linnanmaa, 90590 Oulu #10792373
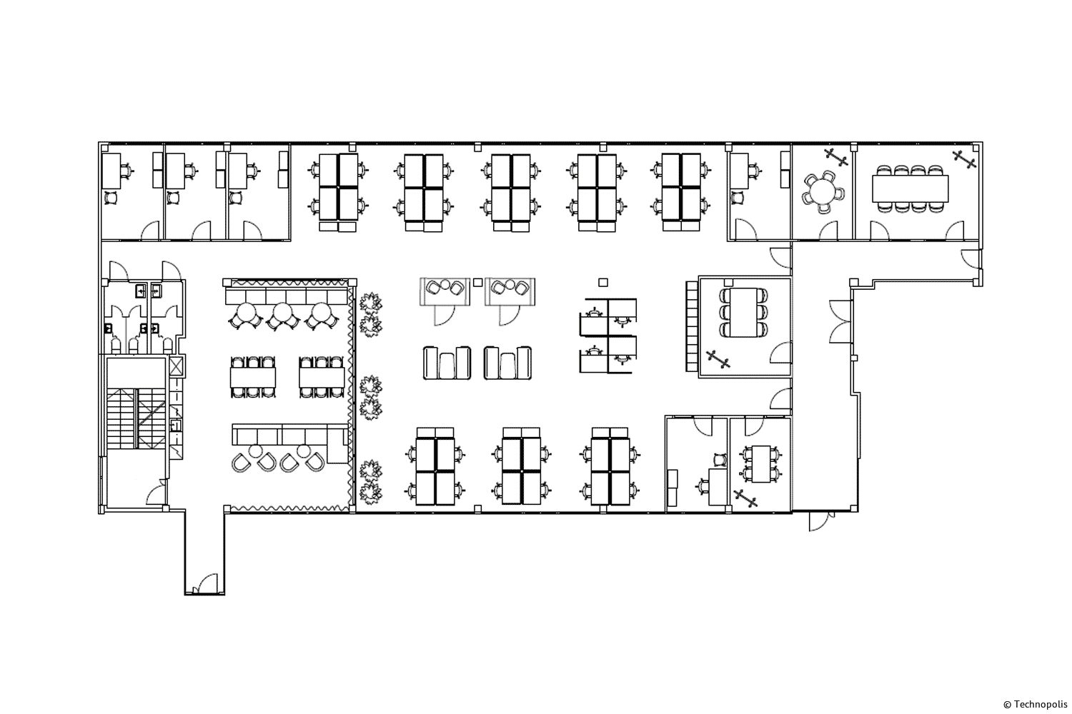
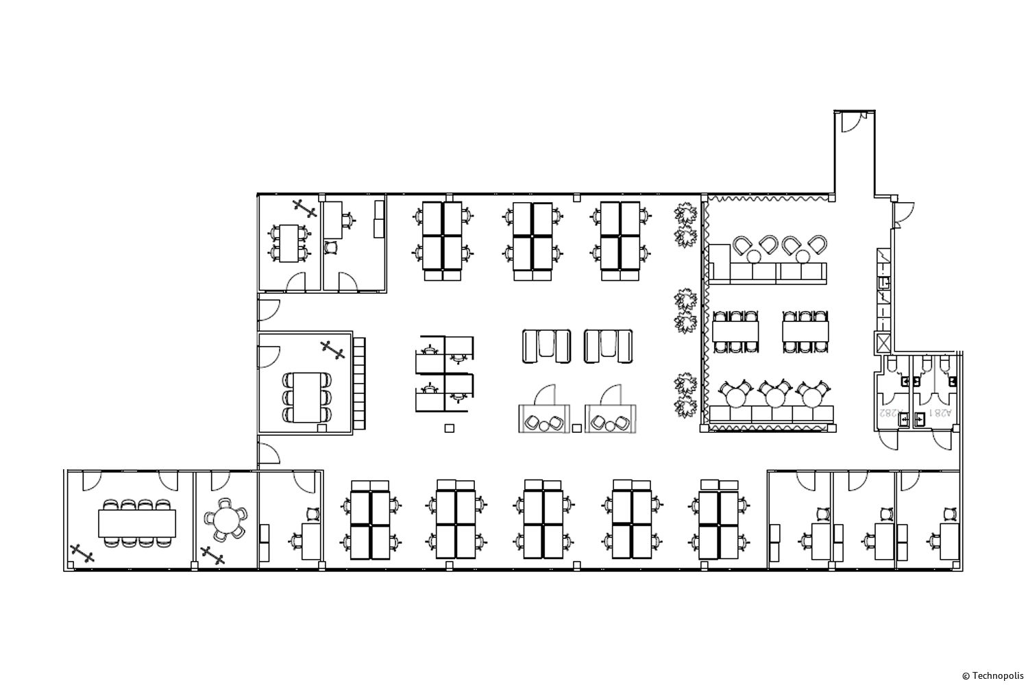
Vuokrattavana suuri ja moderni toisen kerroksen toimistotila Technopolis Linnanmaalta. Tämä monikäyttöinen tila koostuu avarasta avotilasta, joka on helposti muokattavissa huoneiksi tarpeiden mukaan. Lisäksi tilassa on eri kokoisia neuvotteluhuoneita, jotka tarjoavat joustavat puitteet tiimityöskentelyyn ja asiakastapaamisiin. Tilan keittiömahdollisuus lisää käytännöllisyyttä, ja tilasta voi luoda toimivan keittiön, joka tukee arkea ja yrityksen tarpeita.
Kiinteistössä on tarjolla monipuoliset palvelut, jotka tekevät työpäivistä sujuvia ja tehokkaita. Lähistöltä löytyy useita lounasravintoloita, joten lounastauko on vaivaton ja monipuolinen.
Ilmoitettu neliömäärä sisältää myös jyvityksen kiinteistön yhteisistä tiloista. Tämä tila tarjoaa erinomaiset puitteet yritykselle, joka arvostaa modernia ympäristöä, joustavuutta ja hyviä palveluja.
Elektroniikkatie 6 -kiinteistöllä on Gold-tason ylläpidon LEED-sertifikaatti. Ympäristösertifikaatti todentaa rakennuksen edelläkävijyyden ympäristöystävällisyydessä.
Ota yhteyttä ja kysy lisää – autamme mielellämme!
Technopolis
Elektroniikkatie 8 FIN-90590 Oulu
Näytä puhelinnumero
046 712 0000
Maija Väyrynen
Näytä puhelinnumero
040 584 4747
Myynti Technopolis Oulu
Technopolis on työympäristöjen asiantuntija. Tarjoamme joustavia ja tehokkaita toimitiloja sekä niihin liittyviä palveluita. Hoidamme kaiken työtilojen suunnittelusta sekä aula- ja kokouspalveluista ravintoloihin ja siivoukseen. Asiakaskokemus ja sen kehittäminen ovat toimintamme ytimessä. Meillä on 14 kampusta, joissa toimii 1200 asiakasyritystä ja niiden 35 000 työntekijää neljässä maassa Euroopassa.
https://technopolisglobal.com/fi