Vuokrataan toimistotilat - Espoo
Kutojantie 7, Nihtisilta, 02630 Espoo #10792367
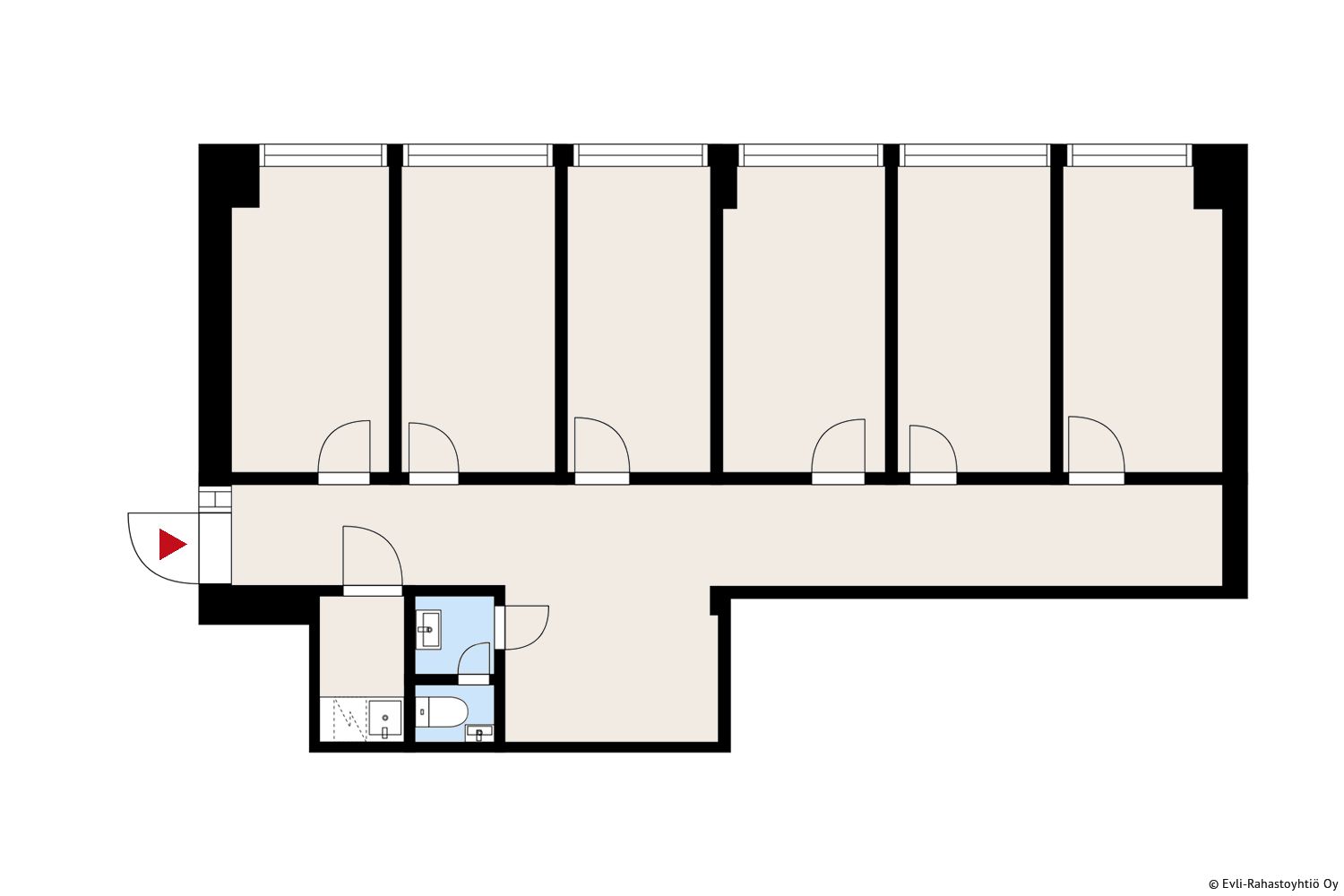
Espoon Kutojantieltä vuokrattavissa siisti neljännen kerroksen toimistotila. Kerroksiin on tavarahissiyhteys ja kellarikerroksesta on vuokrattavissa pienvarastotilaa. Rakennuksen ylimmässä kerroksessa on vuokrattavissa saunaosasto neuvottelutiloineen. Espoon Kiloon on hyvät kulkuyhteydet ja Keran asemalle on matkaa vain noin 500 metriä.
Osoite
Kutojantie 7, 02630 Espoo
Tilatyyppi
Toimistotilaa
102 m2
Kiinteistö
Espoon Kutojantie 7
Pysäköinti
Talon pysäköintihallissa ja pihalla on vuokrattavissa lämmityspistokkeellisia pysäköintipaikkoja. Vieraspaikat sijaitsevat pääsisäänkäynnin edessä.
Palvelut
Vuokrattavia neuvottelutiloja, sauna
Muuta
Tilan ominaisuudet: tilassa on ilmastointi
Vapautuu
Heti vapaa
Kerros
4.
Energiatehokkuusluokka
E
Ota yhteyttä
Evli
Aleksanterinkatu 19, 00100 Helsinki
Näytä puhelinnumero
020 155 8610
Kukka Floor
Näytä puhelinnumero
09 4766 9480
Pyydä lisätietoa
