Vuokrataan toimistotilat - Helsinki
Lintulahdenkuja 10, Sörnäinen, 00500 Helsinki #10792340
Vapaana valoisa toimitiloja merinäköalalla. Tiloja vapaina 5, 7 ja 8 kerroksista.
Osoite
Lintulahdenkuja 10, 00500 Helsinki
Tilatyyppi
Toimistotilaa
220 - 330 m2
Tilajako
Vapaita tiloja
223-350m2 toimistotiloja
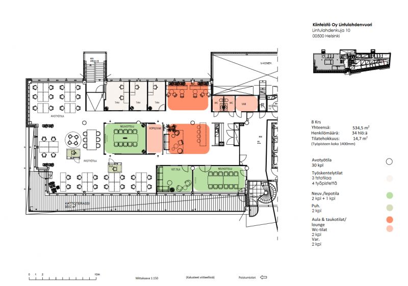
Pohjapiirros
Kiinteistö
Vapaana valoisaa avaraa avotoimistotilaa merimaisemilla. Kiinteistöstä tiloja vapaana 5, 7 ja 8 kerroksista.
Vapaat toimistotilat:
- 614m², 7 krs Upea 7.kerroksen toimisto merimaisemilla. Toimistosta saa tehokkaan avotilan muutamilla huoneilla. Näkymät kolmeen ilmansuuntaan. Tilan voi yhdistää ylimmän kerroksen toimistoon sisäportaalla, jossa upea terassi merimaisemilla.
- 534.5m², 8 krs Upea ylimmän kerroksen toimisto merimaisemilla ja omalla isolla terassilla. Toimistosta saa tehokkaan avotilan muutamilla huoneilla. Näkymät kolmeen ilmansuuntaan. Tilan voi yhdistää alemman kerroksen toimistoon sisäportaalla.
- 605.8m², 5 krs modernia ja muuntovalmista toimistotilaa.
Kiinteistö sijaitsee Suvilahdessa, dynaamisessa tapahtuma- ja kohtaamispaikassa.
Vapaat toimistotilat:
- 614m², 7 krs Upea 7.kerroksen toimisto merimaisemilla. Toimistosta saa tehokkaan avotilan muutamilla huoneilla. Näkymät kolmeen ilmansuuntaan. Tilan voi yhdistää ylimmän kerroksen toimistoon sisäportaalla, jossa upea terassi merimaisemilla.
- 534.5m², 8 krs Upea ylimmän kerroksen toimisto merimaisemilla ja omalla isolla terassilla. Toimistosta saa tehokkaan avotilan muutamilla huoneilla. Näkymät kolmeen ilmansuuntaan. Tilan voi yhdistää alemman kerroksen toimistoon sisäportaalla.
- 605.8m², 5 krs modernia ja muuntovalmista toimistotilaa.
Kiinteistö sijaitsee Suvilahdessa, dynaamisessa tapahtuma- ja kohtaamispaikassa.
Sijainti
Alue tarjoaa monipuolisia palveluita ja on helposti saavutettavissa julkisilla tai omalla autolla.
Vapautuu
Heti
Energiatehokkuusluokka
Ei lain edellyttämää energiatodistusta
Näkyvällä paikalla
Ota yhteyttä
Arvo Premises Oy
Joakim Kukkonen
Osakas, Toimitilavälittäjä
Näytä puhelinnumero
040 555 8106
Seppo Pakarinen
Osakas, Kiinteistönvälittäjä. LKV, YKV, AKA
Näytä puhelinnumero
040-703 8000
Pyydä lisätietoa
