Vuokrataan toimistotilat, liiketilat - Helsinki
Mäkelänkatu 2, Vallila, 00500 Helsinki #10792315
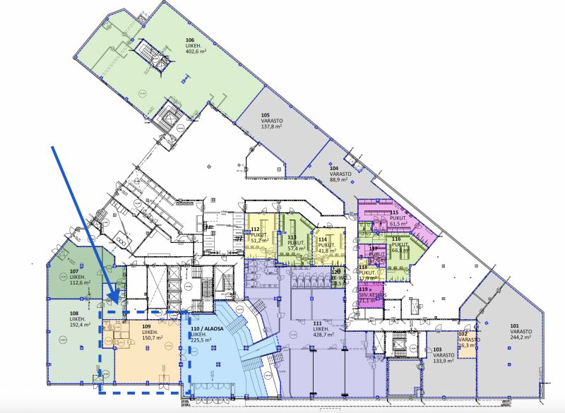
150,7 m² liiketila Lääkäriliiton talossa Vallilassa, Teollisuuskadun ja Vääksyntien kulmassa.
Osoite
Mäkelänkatu 2, 00500 Helsinki
Tilatyyppi
Toimistotilaa
150,7 m2
Liiketilaa
150,7 m2
Yhteensä
150,7 m2
Kiinteistö
Valoisa liiketila, jossa ikkunat ja sisäänkäynti avautuvat Teollisuuskadulle päin.
Täysin saneerattu ja uudistettu kiinteistö tarjoaa nykyaikaista toimitilatilaa Mäkelänkadulla Vallilassa. Kiinteistö sijaitsee toimitilojen keskittymässä, lähistöllä ovat mm. OP:n sekä Nordean pääkonttorit.
Keskeisen sijaintinsa ansiosta kiinteistö on helposti saavutettavissa julkisilla kulkuvälineillä. Kiinteistön välittömässä läheisyydessä sijaitsevat bussi- ja raitiovaunupysäkit sekä Sörnäisten metroasema on muutaman minuutin kävelymatkan päässä.
Täysin saneerattu ja uudistettu kiinteistö tarjoaa nykyaikaista toimitilatilaa Mäkelänkadulla Vallilassa. Kiinteistö sijaitsee toimitilojen keskittymässä, lähistöllä ovat mm. OP:n sekä Nordean pääkonttorit.
Keskeisen sijaintinsa ansiosta kiinteistö on helposti saavutettavissa julkisilla kulkuvälineillä. Kiinteistön välittömässä läheisyydessä sijaitsevat bussi- ja raitiovaunupysäkit sekä Sörnäisten metroasema on muutaman minuutin kävelymatkan päässä.
Vapautuu
Heti
Kerros
1
Energiatehokkuusluokka
Ei lain edellyttämää energiatodistusta
Katutasossa
Näkyvällä paikalla
Hissi
Ota yhteyttä
ScanReal Oy LKV
Opus Business Park
Hitsaajankatu 24
00810 Helsinki
info@scanreal.fi
Puh:
Näytä puhelinnumero
020 730 8830
Sopivat toimitilat yhdellä otolla!
Kartoitamme toimitilatarpeesi ja etsimme yrityksellesi parhaiten sopivat vapaat toimitilat. Koska vuokranantajat maksavat palvelumme, on tämä yrityksellesi veloituksetonta.
OTA YHTEYTTÄ - SOVI NÄYTTÖ!
Kaikki kohteemme eivät ole netissä, kerro tilatarpeesi niin kartoitamme vaihtoehdot.
Palvelumme on tilanhakijalle ilmainen
Pyydä lisätietoa
