Vuokrataan toimistotilat - Helsinki
Fredrikinkatu 47, Kamppi, 00100 Helsinki #10792298
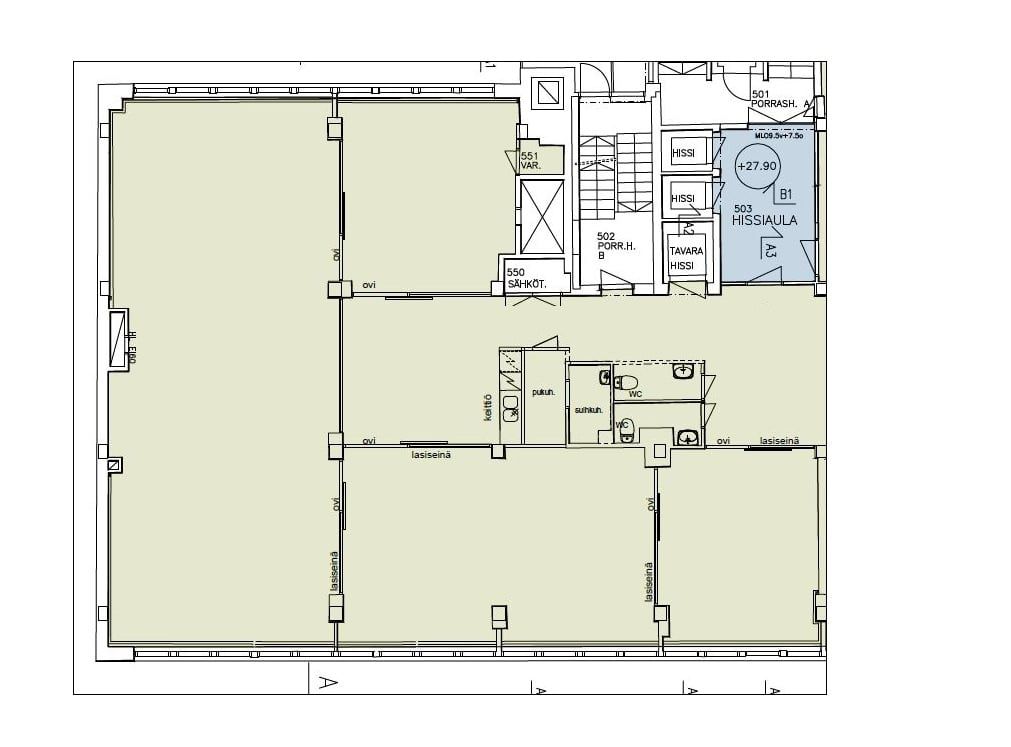
Kampissa keskeisellä mutta rauhallisella sijainnilla vuokrattavana viidennen kerroksen 277 m² toimisto, jossa on modernin monitilatoimiston kaikki elementit. Tilasta löytyy erikokoisia liukuovin suljettavia huoneita, joita voidaan avata myös avoimemmaksi työtilaksi, lisäksi avotilaa, avokeittiö, kaksi WC-tilaa sekä suihku. Erikoisuutena tilassa on oma suihku kuivauskaapilla – täydellinen ratkaisu työmatkapyöräilijöille.
Tilassa on tyylikäs tummahkon harmaa värimaailma ja mustat lasielementtien puitteet. Tila on hyvässä kunnossa, ja käyttäjäkohtaiset muokkaukset ovat mahdollisia. Tavarahissi tulee suoraan tilaan.
Freda 47 sijaitsee Fredrikinkadulla aivan kauppakeskus Kampin läheisyydessä. Kohteeseen on erinomaiset kulkuyhteydet metrolla, bussilla, junalla ja raitiovaunulla. Kaikki keskustan palvelut ovat kävelyetäisyydellä, ja korttelista löytyy useita ravintoloita ja kahviloita. Kiinteistössä on Postin pakettiautomaatti, tavarahissiyhteys kaikkiin kerroksiin sekä kellarikerroksessa suihkutilat ja vuokrattavat varastotilat. Lisäksi kiinteistöllä on oma parkkihalli, josta löytyy paikkoja niin autoille kuin pyörille.
Me Croisettella autamme teitä löytämään teille parhaat tilat! Olemme puolueettomia asiantuntijoita ja tunnemme toimitilamarkkinat, talot sekä tilat vankalla kokemuksella. Meillä on välityksessä kaikki toimitilat ja tiedämme niiden alustavat vuokratasot.
Tehtävämme on tehdä toimitilahaustanne onnistunutta ja helppoa. Saamme palkkiomme kiinteistönomistajalta, joten sinulle palvelumme on täysin maksuton. Jos kiinnostuit, ota yhteyttä!
Hissi
Croisette Real Estate Partner
Erottajankatu 5 A 6, 00130 Helsinki
Näytä puhelinnumero
+358 400 585 857
Croisette Vuokraus
Näytä puhelinnumero
+358400585857
