Vuokrataan toimistotilat - Helsinki
Fredrikinkatu 47, Kamppi, 00100 Helsinki #10792297
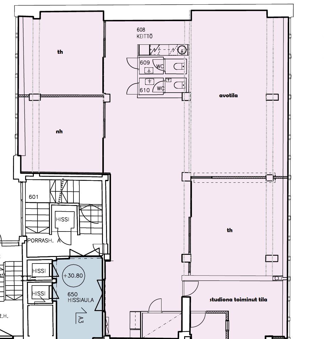
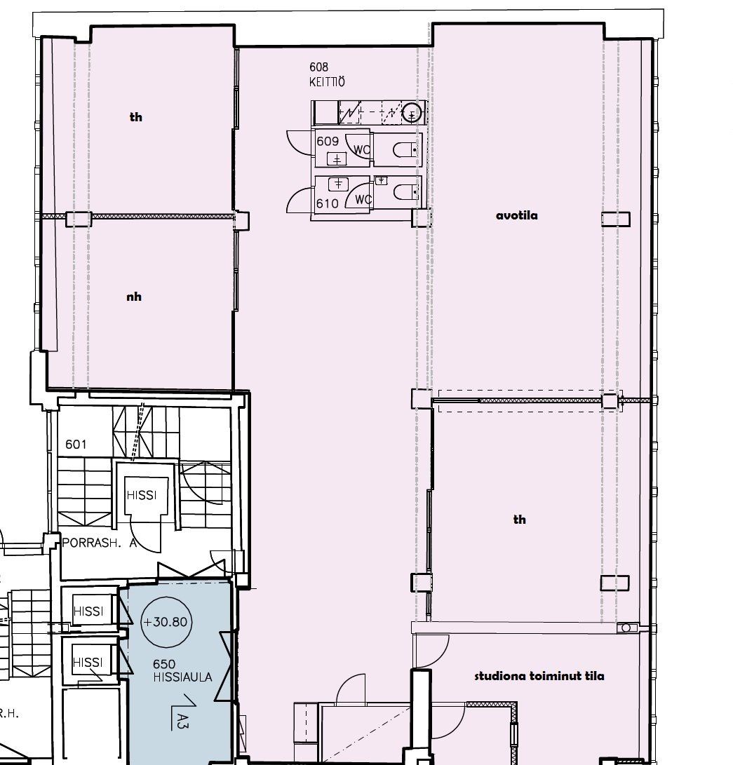
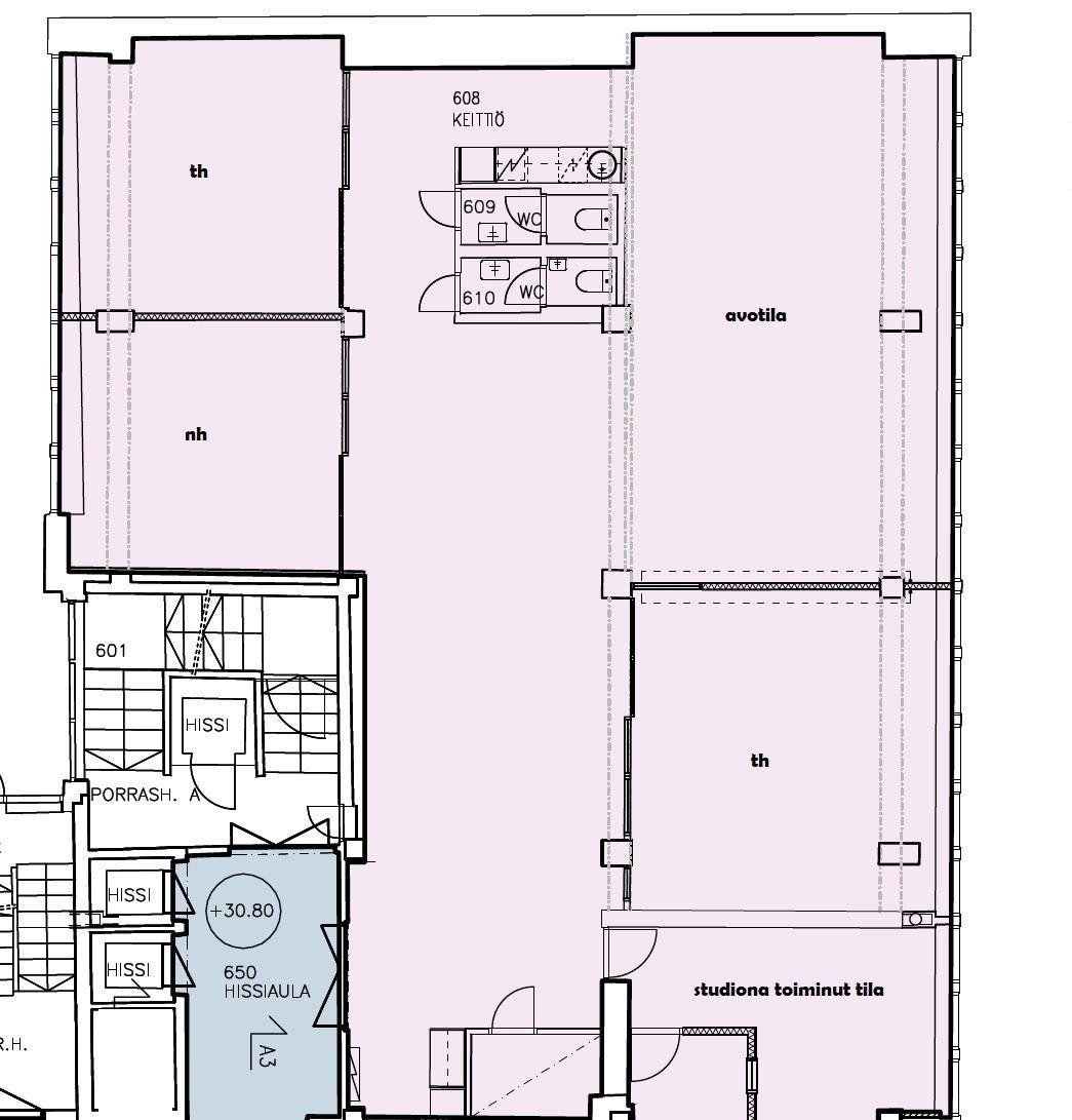
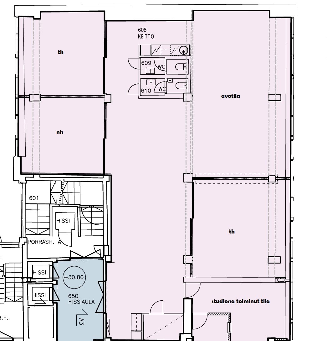
Muuttovalmis ja kaunis 224 m2 toimisto keskeisellä paikalla Kamppia: valmiiksi remontoitu, vaaleasävyinen toimisto, lattia kaunista, kestävää ja akustoivaa vinyylilankkua. Tilassa kolme reilunkokoista, ääntäeristävin lasielementein tehtyä suljettavaa neukkaria / tiimihuonetta / hiljaisen työntilaa sekä avotilaa, avokeittiö, kaksi vessaa yms.
Upouudet led-valot syttyvät kun astut tilaan ja viiveellä sammuvat itsestään kun tilasta poistutaan. Täällä ei toimiston valot viimeisen lähdettyä enää jää vahingossa päällekään.
Ikkunat sekä Fredalle että kauniille sisäpihalle.
Kuudennen kerroksen tila luo täydellisen työskentelyrauhan.
Erittäin järkevä vuokrataso ja mahdollisuus suhteellisen lyhyeenkin vuokrasopimukseen eli esim. kasvavalle yritykselle hieno, muuttovalmis mahdollisuus.
Freda 47 sijaitsee Fredrikinkadulla kauppakeskus Kampin välittömässä läheisyydessä. Erinomaiset kulkuyhteydet niin metrolla, bussilla, junalla ja raitiovaunulla mistä ikinä saavutkin. Kaikki keskustan palvelut ovat aivan vieressä ja samassa korttelissa löytyy useita ravintoloita ja kahviloita. Kiinteistössä on tavarahissiyhteys kaikkiin kerroksiin. Kellaritiloista löytyvät suihkutilat ja vuokrattavat varastotilat. Kiinteistöllä on oma parkkihalli, josta löytyy parkkipaikkojen lisäksi pyöräpaikkoja.
Croisette on uusi ja innovatiivinen toimitilojen välitysyritys Suomessa. Meillä on vahva halu auttaa teitä löytämään paras toimitilaratkaisu mahdollisimman vaivattomasti.
Huomaathan, että kaikki vapaat ja vapautuvat tilat ovat kauttamme saatavilla. Osa tiloista on hiljaisessa markkinoinnissa, mutta ottamalla meihin yhteyttä saat nekin tietoosi.
Palvelumme on tilanhakijoille täysin maksutonta.
Hissi
Croisette Real Estate Partner
Erottajankatu 5 A 6, 00130 Helsinki
Näytä puhelinnumero
+358 400 585 857
Croisette Vuokraus
Näytä puhelinnumero
+358400585857
