Vuokrataan toimistotilat, muut tilat - Espoo
Säteri Business Park - Linnoitus, Linnoitustie 3, Leppävaara, 02600 Espoo #10792225
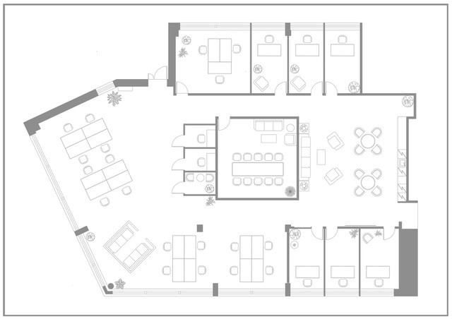
Moderni 404 m² toimistotila erinomaisella sijainnilla Linnoitus-talossa Espoon Leppävaarassa.
Osoite
Linnoitustie 3, 02600 Espoo
Tilatyyppi
Toimistotilaa
397,5 m2
Muuta tilaa
6,5 m2
Yhteensä
404 m2
Pohjapiirros
Kiinteistö
Toimistossa on avotilaa, tyylikäs keittiö, kokoontumistilaa ja työhuoneita. Tilaan voidaan tehdä asiakkaan toiveiden mukaan muutoksia.
Vuosina 2001-2012 valmistunut Säteri Business Park koostuu kahdesta rakennuksesta: Linnoituksesta ja Säteristä. Säteri Business Parkin avarat pohjaratkaisut mahdollistavat monenlaiset tilaratkaisut. Molempien sisäänkäyntien yhteydessä palvelee aulapalvelu ja business parkin kattavat palvelut ovat molempien rakennusten asiakkaiden käytössä.
Ilmoituksen kuvat ovat havainnekuvia kiinteistön eri tiloista.
Vuosina 2001-2012 valmistunut Säteri Business Park koostuu kahdesta rakennuksesta: Linnoituksesta ja Säteristä. Säteri Business Parkin avarat pohjaratkaisut mahdollistavat monenlaiset tilaratkaisut. Molempien sisäänkäyntien yhteydessä palvelee aulapalvelu ja business parkin kattavat palvelut ovat molempien rakennusten asiakkaiden käytössä.
Ilmoituksen kuvat ovat havainnekuvia kiinteistön eri tiloista.
Pysäköinti
Autopaikkoja vuokrattavissa kiinteistön kellarikerroksen parkkihallista sekä piha-alueelta. Asiakaspaikkoja pihalla.
Kulkuyhteydet
Bussipysäkki alle 100 m, Juna-asema 200 m, Lentoasema 14,3 km.
Vapautuu
Heti
Kerros
3
Energiatehokkuusluokka
Ei lain edellyttämää energiatodistusta
Näkyvällä paikalla
Hissi
Ota yhteyttä
ScanReal Oy LKV
Opus Business Park
Hitsaajankatu 24
00810 Helsinki
info@scanreal.fi
Puh:
Näytä puhelinnumero
020 730 8830
Sopivat toimitilat yhdellä otolla!
Kartoitamme toimitilatarpeesi ja etsimme yrityksellesi parhaiten sopivat vapaat toimitilat. Koska vuokranantajat maksavat palvelumme, on tämä yrityksellesi veloituksetonta.
OTA YHTEYTTÄ - SOVI NÄYTTÖ!
Kaikki kohteemme eivät ole netissä, kerro tilatarpeesi niin kartoitamme vaihtoehdot.
Palvelumme on tilanhakijalle ilmainen
Pyydä lisätietoa
