Vuokrataan toimistotilat, muut tilat - Helsinki
Holkkitie 8B, Roihupellon teollisuusalue, 00880 Helsinki #10792195
Vuokrattavissa toisen kerroksen toimisto-/työtila Helsingin Roihupellon teollisuusalueella lähellä Itäväylää.
Osoite
Holkkitie 8B, 00880 Helsinki
Tilatyyppi
Toimistotilaa
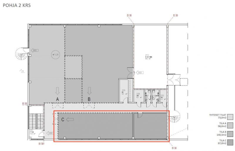
87 m2
Muuta tilaa
20 m2
Yhteensä
107 m2
Tilajako
20 m² jyvityksiä yhteisistä tiloista.
Pohjapiirros
Kiinteistö
Vuokrattavissa toisen kerroksen toimisto-/työtila Helsingin Roihupellon teollisuusalueella lähellä Itäväylää. Tila on 87 m² kokoinen, lisäksi n. 20 m² jyvityksiä yhteisistä tiloista.
Edustuskelpoista toimisto-/näyttelytilaa, jossa reilusti huonekorkeutta ja hyvä sijainti. Tilat monipuolisten palvelujen läheltä ja erinomaiset julkiset kulkuyhteydet. Pysäköintitilaa pihalla ja kadulla.
Tiloissa koneellinen ilmanvaihto lämmöntalteenotolla ja jäähdytyksellä.
Edustuskelpoista toimisto-/näyttelytilaa, jossa reilusti huonekorkeutta ja hyvä sijainti. Tilat monipuolisten palvelujen läheltä ja erinomaiset julkiset kulkuyhteydet. Pysäköintitilaa pihalla ja kadulla.
Tiloissa koneellinen ilmanvaihto lämmöntalteenotolla ja jäähdytyksellä.
Vapautuu
Heti
Energiatehokkuusluokka
H (ei luokitusta)
Ota yhteyttä
ScanReal Oy LKV
Opus Business Park
Hitsaajankatu 24
00810 Helsinki
info@scanreal.fi
Puh:
Näytä puhelinnumero
020 730 8830
Sopivat toimitilat yhdellä otolla!
Kartoitamme toimitilatarpeesi ja etsimme yrityksellesi parhaiten sopivat vapaat toimitilat. Koska vuokranantajat maksavat palvelumme, on tämä yrityksellesi veloituksetonta.
OTA YHTEYTTÄ - SOVI NÄYTTÖ!
Kaikki kohteemme eivät ole netissä, kerro tilatarpeesi niin kartoitamme vaihtoehdot.
Palvelumme on tilanhakijalle ilmainen
Pyydä lisätietoa
