Vuokrataan toimistotilat - Helsinki
Pasilanraitio 5, Pasila, 00240 Helsinki #10792192
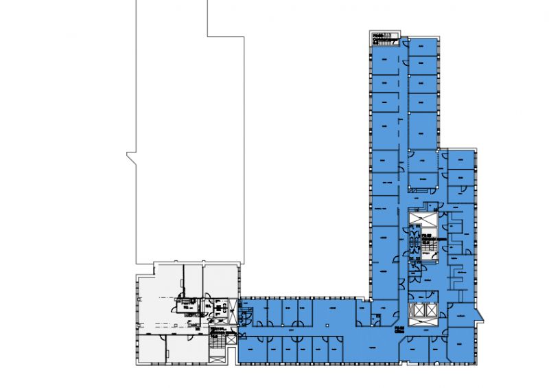
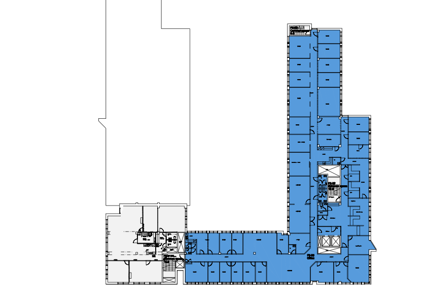
Koko viidennen kerroksen kattava 918,5 m² toimisto, parhaalla paikalla Länsi-Pasilassa, erinomaisten liikenneyhteyksien varrella.
Kuusikerroksinen toimistorakennus, Fredika, tarjoaa muunneltavia toimitiloja näkyvällä paikalla Pasilan juna-aseman läheisyydessä. Vuonna 1984 valmistuneessa Pasilanraitio 5:ssä on vuokrattavaa toimitilaa yhteensä noin 6 400 m².
Kiinteistön kellarikerroksessa on toimistovuokralaisille vuokrattavissa varastotiloja. Ylimmästä kerroksesta löytyy saunaosasto ja kaksi eri kokoista neuvottelutilaa. Saunaosastoa hallinnoi ulkopuolinen saunaoperaattori. Vuokralaisten henkilökunnan käytössä on kuntosali. Kiinteistössä toimii mm. Alepa-päivittäistavarakauppa ja lounasravintola.
Pasilanraitio 5 sijaitsee loistavasti toimivien liikenneyhteyksien varrella. Raitiovaunu- ja bussipysäkit ovat aivan kiinteistön vieressä. Kävelymatka Pasilan juna-asemalle on noin 400 metriä. Pasilasta pääsee kehärataa pitkin lentokentälle noin 22 minuutissa, ja myös kaikki lähi- ja kaukoliikenteen junat pysähtyvät Pasilassa.
Kiinteistön omassa autohallissa on 33 autopaikkaa ja talon välittömässä läheisyydessä on vieraspysäköintiin soveltuvia maksullisia pysäköintipaikkoja. Lisää pysäköintitilaa on vuokrattavissa pysäköintioikeuksina Länsi-Pasilan Autopaikat Oy:n P1-hallista (Palkkatilanportti). Polkupyörille on säilytystelineet kiinteistön autohallissa ja kuntosalin sosiaalitilat ovat työmatkapyöräilijöiden käytössä.
Pasilan alue kokonaisuudessaan kehittyy ja uudistuu voimakkaasti. Uusi joukkoliikennekeskus avautuu osana rakenteilla olevaa Triplan kauppakeskusta. Pasilasta tulee entistä merkittävämpi alue niin liikenteen solmukohtana kuin työpaikkojen, asuntojen sekä palveluiden sijaintipaikkana.
Katutasossa
Näkyvällä paikalla
Hissi
ScanReal Oy LKV
Opus Business Park
Hitsaajankatu 24
00810 Helsinki
info@scanreal.fi
Puh:
Näytä puhelinnumero
020 730 8830
Sopivat toimitilat yhdellä otolla!
Kartoitamme toimitilatarpeesi ja etsimme yrityksellesi parhaiten sopivat vapaat toimitilat. Koska vuokranantajat maksavat palvelumme, on tämä yrityksellesi veloituksetonta.
OTA YHTEYTTÄ - SOVI NÄYTTÖ!
Kaikki kohteemme eivät ole netissä, kerro tilatarpeesi niin kartoitamme vaihtoehdot.
Palvelumme on tilanhakijalle ilmainen
