Vuokrataan toimistotilat - Helsinki
Osmontie 38, Käpylä, 00610 Helsinki #10792130
Modernia ja laadukasta toimistotilaa Helsingin Käpylässä
Osoite
Osmontie 38, 00610 Helsinki
Tilatyyppi
Toimistotilaa
372 m2
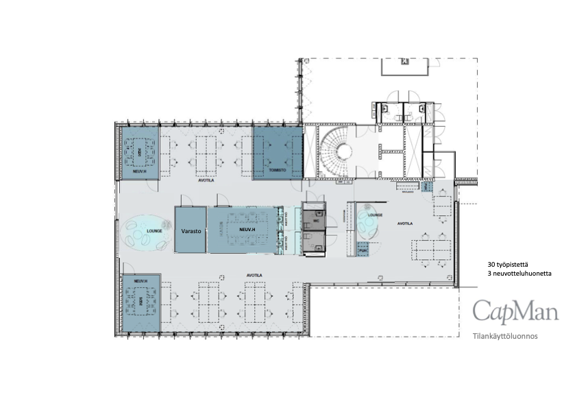
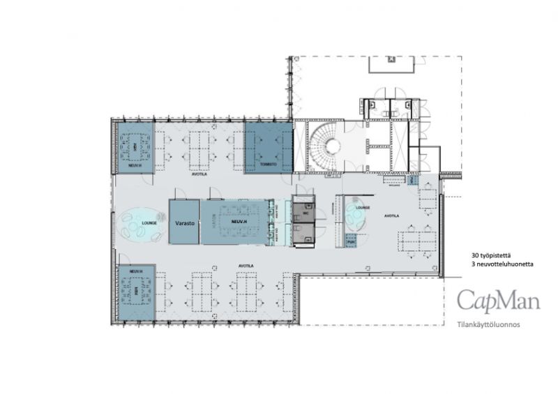
Pohjapiirros
Kiinteistö
Helsingin Käpylässä hyvien kulkuyhteyksien varrella on vuokrattavana toisen kerroksen valoisa ja avara toimistotila.
Toimisto on 346 m², lisäksi tulee yhteiskäyttöisiä tiloja 26 m² (= auloja, sos.tiloja etc).
Kohde sijaitsee aivan Tuusulanväylän ja Käpylän juna-aseman vieressä. Lyhyen kävelymatkan päästä löytyvät mm. ruokakauppa sekä kuntosali.
Vuokrattaviin neilöihin lisätään osuus yhteiskäyttöisistä tiloista.
Toimisto on 346 m², lisäksi tulee yhteiskäyttöisiä tiloja 26 m² (= auloja, sos.tiloja etc).
Kohde sijaitsee aivan Tuusulanväylän ja Käpylän juna-aseman vieressä. Lyhyen kävelymatkan päästä löytyvät mm. ruokakauppa sekä kuntosali.
Vuokrattaviin neilöihin lisätään osuus yhteiskäyttöisistä tiloista.
Kulkuyhteydet
Raitiovaunupysäkki 500 m, Bussipysäkki 200 m, Juna-asema 100 m, Lentoasema 10,9 km
Vapautuu
Heti
Kerros
2
Energiatehokkuusluokka
Ei lain edellyttämää energiatodistusta
Hissi
Ota yhteyttä
ScanReal Oy LKV
Opus Business Park
Hitsaajankatu 24
00810 Helsinki
info@scanreal.fi
Puh:
Näytä puhelinnumero
020 730 8830
Sopivat toimitilat yhdellä otolla!
Kartoitamme toimitilatarpeesi ja etsimme yrityksellesi parhaiten sopivat vapaat toimitilat. Koska vuokranantajat maksavat palvelumme, on tämä yrityksellesi veloituksetonta.
OTA YHTEYTTÄ - SOVI NÄYTTÖ!
Kaikki kohteemme eivät ole netissä, kerro tilatarpeesi niin kartoitamme vaihtoehdot.
Palvelumme on tilanhakijalle ilmainen
Pyydä lisätietoa
