Vuokrataan toimistotilat - Helsinki
Kasarmikatu 44, Kaartinkaupunki, 00130 Helsinki #10791985
Laadukasta toimistotilaa Helsingin keskustasta
Osoite
Kasarmikatu 44, 00130 Helsinki
Tilatyyppi
Toimistotilaa
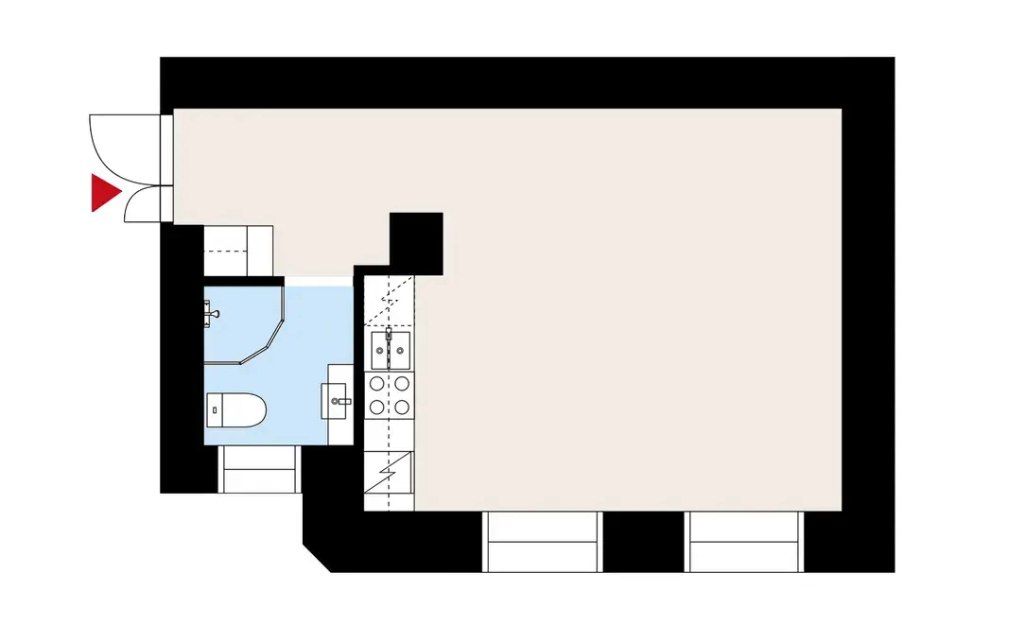
32 m2
Muuta
Vuokrattavana siisti 32,5m2 toimistotila, jossa on oma keittiö ja WC-tila. Sisäänkäynti on Rikhardinkadun puolelta.
Hyvin hoidettu kiinteistö sijaitsee Savoyn naapurissa Helsinki Business Districtin ytimessä. Täällä naapureinasi ovat oman alansa huiput, mm. Roschier ja SEB. Palvelutarjonta on erinomainen. Suomen liike-elämän keskustassa käden ulottuvillasi on paras mahdollinen palvelutaso ja -valikoima. Rautatie-, bussi- sekä metroasemalle on muutaman minuutin kävely. Oman auton käyttäjiä palvelevat useat autoparkkihallit.
Tervetuloa tutustumaan, varaathan välittäjältä oman esittelyaikasi. Kysy meiltä muitakin juuri teille sopivia vaihtoehtoja - meidän kautta saat myös täysin teidän tarpeisiin räätälöidyt tilat. Palvelumme on tilanhakijalle veloitukseton!
Hyvin hoidettu kiinteistö sijaitsee Savoyn naapurissa Helsinki Business Districtin ytimessä. Täällä naapureinasi ovat oman alansa huiput, mm. Roschier ja SEB. Palvelutarjonta on erinomainen. Suomen liike-elämän keskustassa käden ulottuvillasi on paras mahdollinen palvelutaso ja -valikoima. Rautatie-, bussi- sekä metroasemalle on muutaman minuutin kävely. Oman auton käyttäjiä palvelevat useat autoparkkihallit.
Tervetuloa tutustumaan, varaathan välittäjältä oman esittelyaikasi. Kysy meiltä muitakin juuri teille sopivia vaihtoehtoja - meidän kautta saat myös täysin teidän tarpeisiin räätälöidyt tilat. Palvelumme on tilanhakijalle veloitukseton!
Vapautuu
Kysy
Rakennusvuosi
1899
Kerros
5
Ota yhteyttä
Tuloskiinteistöt Oy
Rikhardinkatu 2 B 5, 00130 Helsinki
Näytä puhelinnumero
(09) 6841 620
Otto Ahtola
Commercial Real Estate Advisor
Näytä puhelinnumero
+358 40 042 2830
Jorma Ryynänen
Commercial Real Estate Advisor LKV, LVV
Näytä puhelinnumero
+358 40 708 4064
Pyydä lisätietoa
