Vuokrataan toimistotilat - Helsinki
Pohjoisesplanadi 21, Keskusta, 00100 Helsinki #10791950
Vuokrataan hyväkuntoinen ja rauhallinen toimistotila, joka räätälöidään uusille vuokralaisille. Tila remontoidaan ennen vuokraamista. Näkymät esplanadin puistoon. Läheisyydessä lukuisia ravintoloja ja palveluita.
Historiallinen ja arvostettu Carl Ludvig Engelin suunnittelema kiinteistö sijaitsee Helsingin paraatipaikalla Pohjoisesplanadilla, aivan Kauppatorin ja keskustan palveluiden äärellä. Rakennus valmistui vuonna 1820, ja siihen on lisätty pihasiipiä ja tehty merkittäviä muutoksia 1800-1900 -luvuilla. Kiinteistö on nelikerroksinen ja tunnetaan klassisesta arkkitehtuuristaan sekä modernisoiduista toimistotiloista.
Lisätietoja 020 7290 710 ja lisää kohteita premises.fi
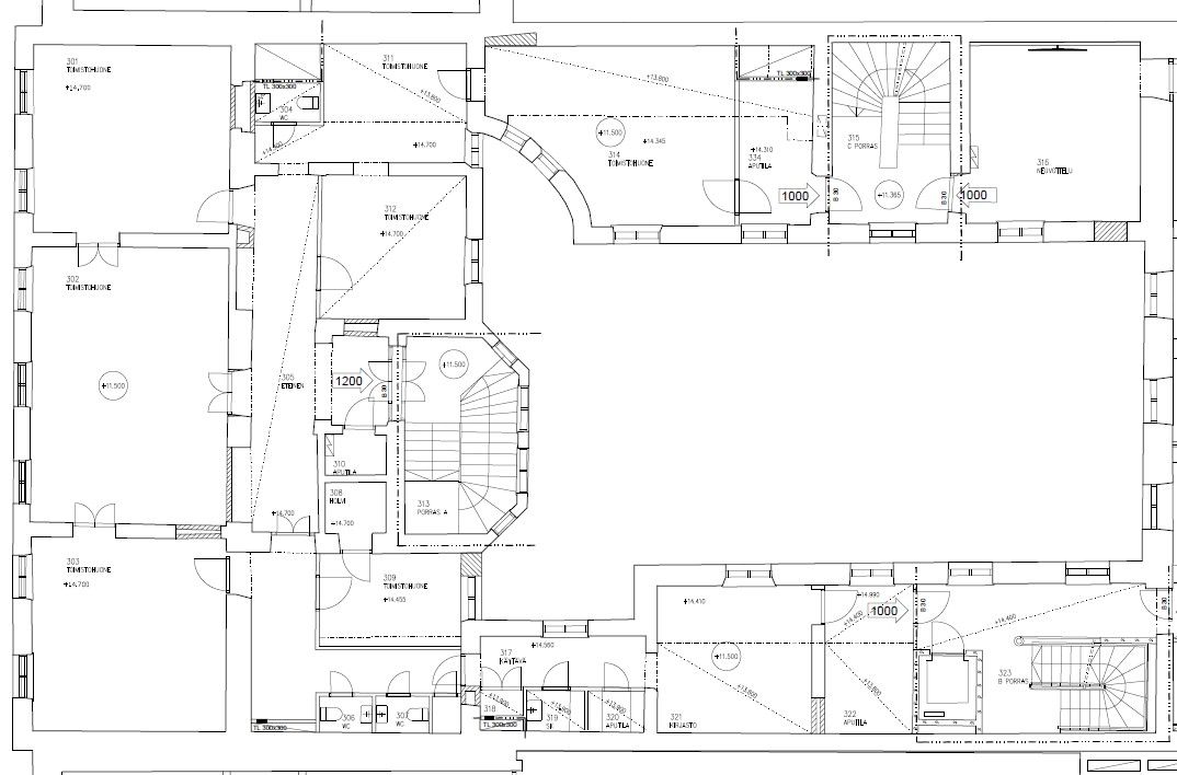
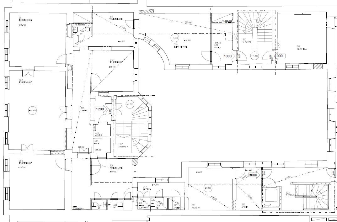
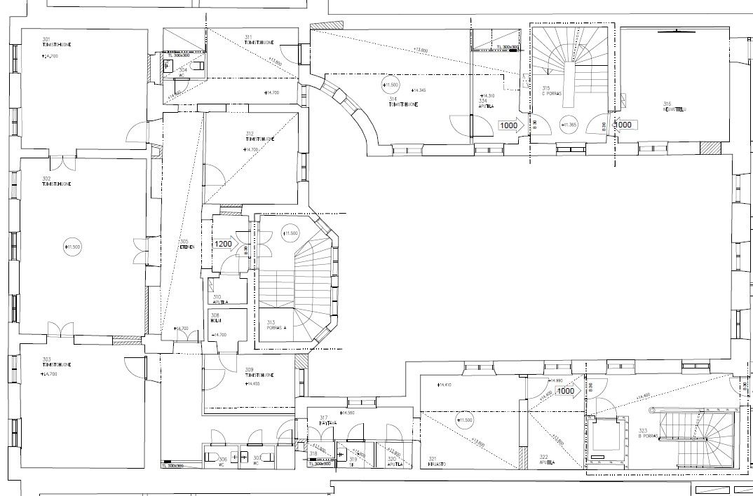
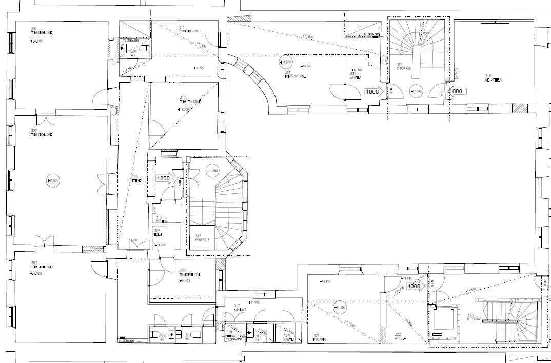
Energialuokka C.Kerros: 3
CRE PREMISES
Puh. Näytä puhelinnumero 020 7290 710
Vantaankoskentie 14
01670 VANTAA
