Vuokrataan toimistotilat - Helsinki
Cavoniuksen talo, Pohjoisesplanadi 21, Helsinki Keskusta - Etu-Töölö, 00100 Helsinki #10791897
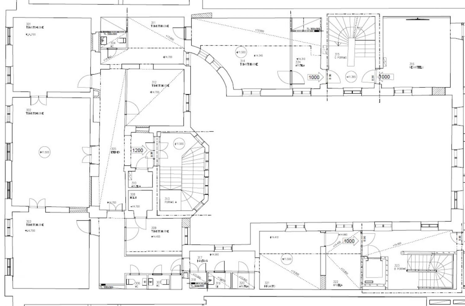
3. kerroksen toimistohuoneisto, josta näkymät Esplanadin puistoon. Tila vapautuu syyskuussa ja se remontoidaan valmiiksi uudelle vuokralaiselle.
Osoite
Pohjoisesplanadi 21, 00100 Helsinki
Tilatyyppi
Toimistotilaa
281 m2
Muuta
Cavoniuksen talo sijaitsee yhdellä Helsingin arvostetuimmista alueista, osoitteessa Pohjoisesplanadi 21 . Carl Ludvig Engelin suunnittelema arvokiinteistö on yksi Helsingin liikekeskustan vanhimmista rakennuksista.
Talon Pohjoisesplanadin puoleinen osa valmistui vuonna 1820, läntinen ja itäinen pihasiipi 1843 ja itäsiiven lisärakennus 1849. Vuonna 1882 taloon rakennettiin pohjoinen pihasiipi, jonka suunnittelijana oli arkkitehtitoimisto Kiseleff & Heikel. Vuotta myöhemmin 1883 valmistui vielä arkkitehti Sebastian Gripenbergin suunnittelema pihasiiven lisärakennus.
1900-luvun puolella talon pihasiipiä korjattiin ja rakennettiin uusi lisärakennus sekä sisustettiin taloon perustettu elokuvateatteri vuosina 1908–1909. Nämä muutokset suunnitteli arkkitehtitoimisto Valter Jung & Emil Fabritius. Emil Fabritius suunnitteli 1930-luvulla vielä taloon ikkunajaon muutokset, julkisivun itäiset näyteikkunat ja pääportaan muutokset. Myöhemmin on muun muassa talon ullakko sisustettu ateljeetiloiksi ja myös perustuksia vahvistettu vuonna 1962.
Talon Pohjoisesplanadin puoleinen osa valmistui vuonna 1820, läntinen ja itäinen pihasiipi 1843 ja itäsiiven lisärakennus 1849. Vuonna 1882 taloon rakennettiin pohjoinen pihasiipi, jonka suunnittelijana oli arkkitehtitoimisto Kiseleff & Heikel. Vuotta myöhemmin 1883 valmistui vielä arkkitehti Sebastian Gripenbergin suunnittelema pihasiiven lisärakennus.
1900-luvun puolella talon pihasiipiä korjattiin ja rakennettiin uusi lisärakennus sekä sisustettiin taloon perustettu elokuvateatteri vuosina 1908–1909. Nämä muutokset suunnitteli arkkitehtitoimisto Valter Jung & Emil Fabritius. Emil Fabritius suunnitteli 1930-luvulla vielä taloon ikkunajaon muutokset, julkisivun itäiset näyteikkunat ja pääportaan muutokset. Myöhemmin on muun muassa talon ullakko sisustettu ateljeetiloiksi ja myös perustuksia vahvistettu vuonna 1962.
Vapautuu
Kysy
Rakennusvuosi
1820
Kerros
3
Ota yhteyttä
Juhola Asset Management Oy
Itsehallintokuja 4 02600 Espoo
Näytä puhelinnumero
040 4551 390
Leena Juhola
Pyydä lisätietoa
