Vuokrataan liiketilat - Seinäjoki

Keskuskatu 17, 60100 Seinäjoki #10791735

Liiketilaa Seinäjoen keskustassa

Osoite
Keskuskatu 17, 60100 Seinäjoki
Tilatyyppi
Liiketilaa
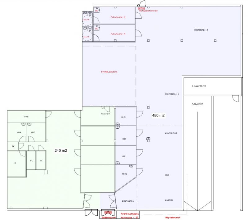
480 m2
Pohjapiirros
Muuta
Esimerkiksi myymäläksi tai juomaravintolaksi loistavasti soveltuva tila. Sijainti erinomainen Seinäjoen keskustassa.
Vapautuu
Heti
Ota yhteyttä

Kuisla Group Oy

Juhani Jankkari, puh. Näytä puhelinnumero 050 538 8644
Reima Kuisla, puh. Näytä puhelinnumero 0500 660 264

Pyydä lisätietoa

Kohteesta Keskuskatu 17, Seinäjoki

 

B2B palvelut

MARKKINOINTI

Tavoita oikea kohderyhmä!

LASTAUSRATKAISUT

Mainos
Lastauksien ratkaisut tehokkaammin ja turvallisemmin